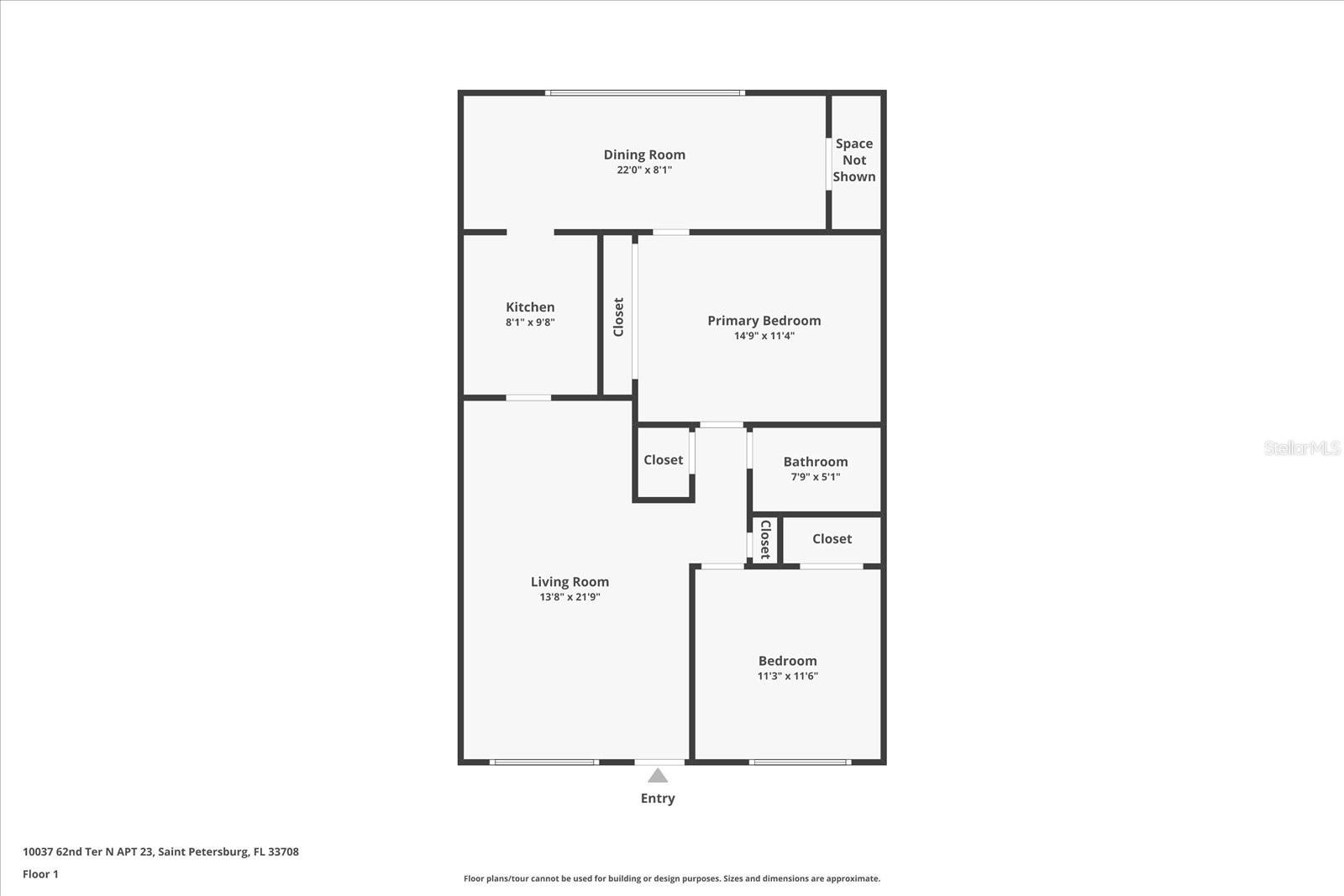
10037 62Nd Terrace #23, St Petersburg, FL 33708
- 1,010 Sq Ft ($114 per sqft)
- 2
- 1
ID: A4656703
For Sale
:
$114,999
Priced to sell quickly! Motivated seller!
Welcome to sunny Florida living in Long Bayou, a vibrant and active 55+ gated community packed with amenities and charm.
This well-kept 2-bedroom, 1-bath condo offers a comfortable layout and plenty of potential to make it your own. Step inside to brand-new luxury vinyl plank flooring throughout the main living areas, fresh carpet in both bedrooms, and a brand-new refrigerator and dishwasher adding great value to the kitchen. The open, easy-to-work-in kitchen features plenty of cabinets and a generous pantry, gas range —ready for your personal touches.
Enjoy the bright, enclosed sunroom overlooking the community—perfect for morning coffee or an afternoon read. The living room faces a beautifully landscaped, tree-lined courtyard that brings a peaceful, green setting right to your front door. Both bedrooms offer good closet space, plus you’ll appreciate the linen closet and large storage closet.
And when it’s time for fun, this community delivers. Amenities include a heated pool and spa, tennis and shuffleboard courts, a fitness center with locker rooms, clubhouse, arts & crafts room, library, and outdoor grills for residents to enjoy. Friendly neighbors and endless activities make this a place you’ll love coming home to.
Prime location: minutes to St. Petersburg College, the local public library, shopping, dining, and just a short drive to the Gulf’s world-famous beaches.
Whether you’re looking for a seasonal getaway or a full-time home, this condo offers comfort, convenience, and true Florida living.
Don’t wait—schedule your showing today and start living your Florida dream!
Equipment:
- Dishwasher
- Disposal
- Range
- Refrigerator
Interior Features:
- Ceiling Fans(s)
- Living Room/Dining Room Combo
- Split Bedroom
Exterior Features:
- Courtyard
- Garden
View:
- Garden
Amenities:
- Laundry
- Pool
- Recreation Facilities
- Shuffleboard Court
- Tennis Court(s)
Financial Information:
- Taxes: $386.30
- Tax Year: 2024
- Association Fee Frequency: Monthly
- Condo Fee Frequency: Monthly
Room Dimensions:
- Laundry: Common Area
Additional Information:
- MLS Area: 33708 - St Pete/Madeira Bch/N Redington Bch/Shores
- Price per Square Feet: $113.86
- Total Floors: 2
- Water: Public
- Lot Desc.: Landscaped, Near Public Transit, Sidewalk, Paved, Private
- Construction: Block, Stucco
- Date Listed: 2025-06-25 16:27:18
- Pool: No
- Flooring: Carpet, Luxury Vinyl
- Roof: Built-Up
- Heating: Central
- Cooling: Central Air
- Pets: Cats Ok, Dogs Ok
- Sewer: Public Sewer
- Amenities: Laundry, Pool, Recreation Facilities, Shuffleboard Court, Tennis Court(S)