10216 46Th Avenue, Bradenton, FL 34210
- 6,455 Sq Ft ($1,069 per sqft)
- 6
- 7
ID: A4666175
For Sale
:
$6,900,000
Nestled behind custom gates on nearly 0.83 acres of lushly landscaped tropical grounds, this one-of-a-kind, gated bayfront estate blends secluded serenity with unrivaled luxury. Moments by boat from the Gulf of Mexico, the property welcomes you via a sweeping drive lined with palms, revealing a motor court that provides access to the main residence, a charming cottage, a guest apartment, and the poetic “Owl’s Nest.” Inside the main home, you’ll find an entertainer’s dream a grand great room with a gas fireplace opens to sweeping bay views, accompanied by a chef’s kitchen outfitted with Wolf and Sub-Zero appliances, dramatic built-in wine storage, and a stunning Forno Bravo pizza oven. Custom stone and wood finishes, soaring arches, and elegant moldings underscore the craftsman-level quality throughout.
The primary suite is a tranquil retreat with a cozy fireplace and steam shower, while additional guest suites offer comfort and privacy. Outdoors, the property shines with a tiki hut, resort-style freeform heated pool, and a fully equipped outdoor kitchen and living area that beckons relaxing evenings by the bay. Water access here is sublime with approximately 100 feet of protected water frontage, a covered boat lift, expansive dock with charging, all positioned to enjoy daily visits from dolphins and manatees against the backdrop of breathtaking sunsets. Located minutes from upscale shopping, fine dining, and Gulf beaches, this unparalleled compound is not just a home it’s a peaceful, private paradise designed for lavish entertaining, family memories, and luxurious coastal living.
Equipment:
- Bar Fridge
- Built-In Oven
- Convection Oven
- Cooktop
- Dishwasher
- Disposal
- Dryer
- Exhaust Fan
- Freezer
- Gas Water Heater
- Ice Maker
- Microwave
- Range Hood
- Refrigerator
- Tankless Water Heater
- Washer
- Water Filtration System
- Wine Refrigerator
Interior Features:
- Built-in Features
- Ceiling Fans(s)
- Central Vaccum
- Crown Molding
- Eat-in Kitchen
- Elevator
- High Ceilings
- Kitchen/Family Room Combo
- Living Room/Dining Room Combo
- Open Floorplan
- Other
- Smart Home
- Split Bedroom
- Stone Counters
- Thermostat
- Vaulted Ceiling(s)
- Walk-In Closet(s)
- Wet Bar
- Window Treatments
Exterior Features:
- Dog Run
- French Doors
- Hurricane Shutters
- Lighting
- Outdoor Grill
- Outdoor Kitchen
- Outdoor Shower
- Private Mailbox
- Rain Gutters
- Sliding Doors
- Storage
View:
- Pool
- Water
Financial Information:
- Taxes: $57.00
- Tax Year: 2024
Room Dimensions:
- Laundry: Inside, Laundry Room, Oth
School Information:
- Elementary School: Sea Breeze Elementary
- Middle School: W.d. Sugg Middle
- Junior High: W.d. Sugg Middle
- High School: Bayshore High
Additional Information:
- MLS Area: 34210 - Bradenton
- Price per Square Feet: $1,068.94
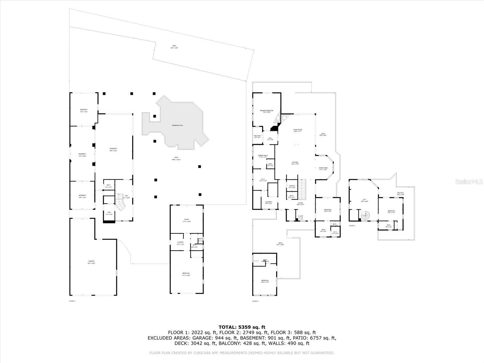
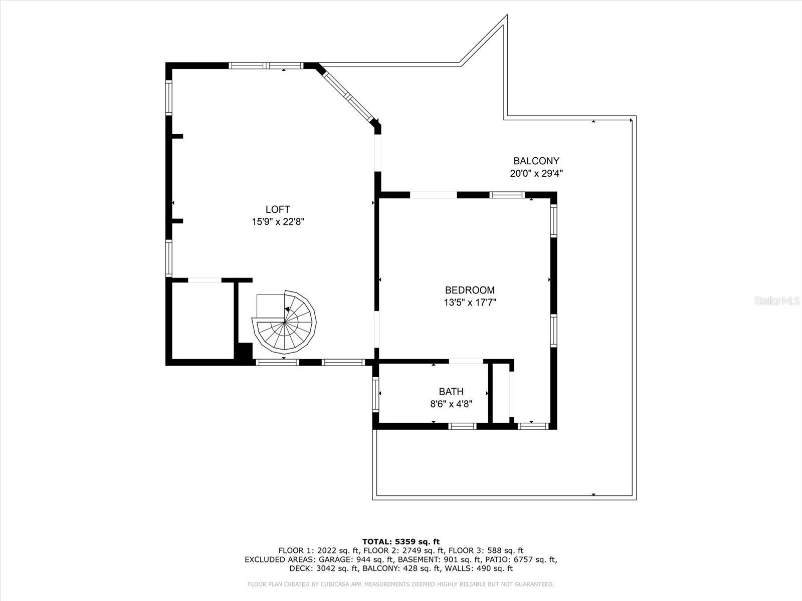
- Total Floors: 3
- Water: Public, Well
- Lot Desc.: Cleared, Drainage Canal, In County, Level, Near Marina, Near Public Transit, Oversized Lot, Street Dead-End, Paved
- Construction: Block, Concrete, Stucco, Frame
- Date Listed: 2025-09-30 01:03:08
- Pool: Yes
- Pool Type: Auto Cleaner, Chlorine Free, Deck, Fiber Optic Lighting, Gunite, Heated, In
- Private Spa: Yes
- Furnished: Furnished
- Windows: Blinds
- Parking: Circular Driveway, Driveway, Garage Door Opener, Golf Cart Parking, Ground Level, Oversized, Tandem
- Garage Spaces: 6
- Flooring: Brick, Ceramic Tile, Hardwood, Slate
- Roof: Built-Up, Metal
- Heating: Central, Electric, Heat Pump, Zoned
- Cooling: Central Air, Zoned
- Pets: Yes
- Sewer: Public Sewer
Waterfront Description:
- Bay/Harbor