117 Bellamere Palms Court, Lutz, FL 33549
- 6,820 Sq Ft ($609 per sqft)
- 6
- 6
ID: TB8429681
For Sale
:
$4,150,000
Experience Unparalleled Elegance at Villa Adriana: A Legacy Estate Awaiting Its Next Chapter.
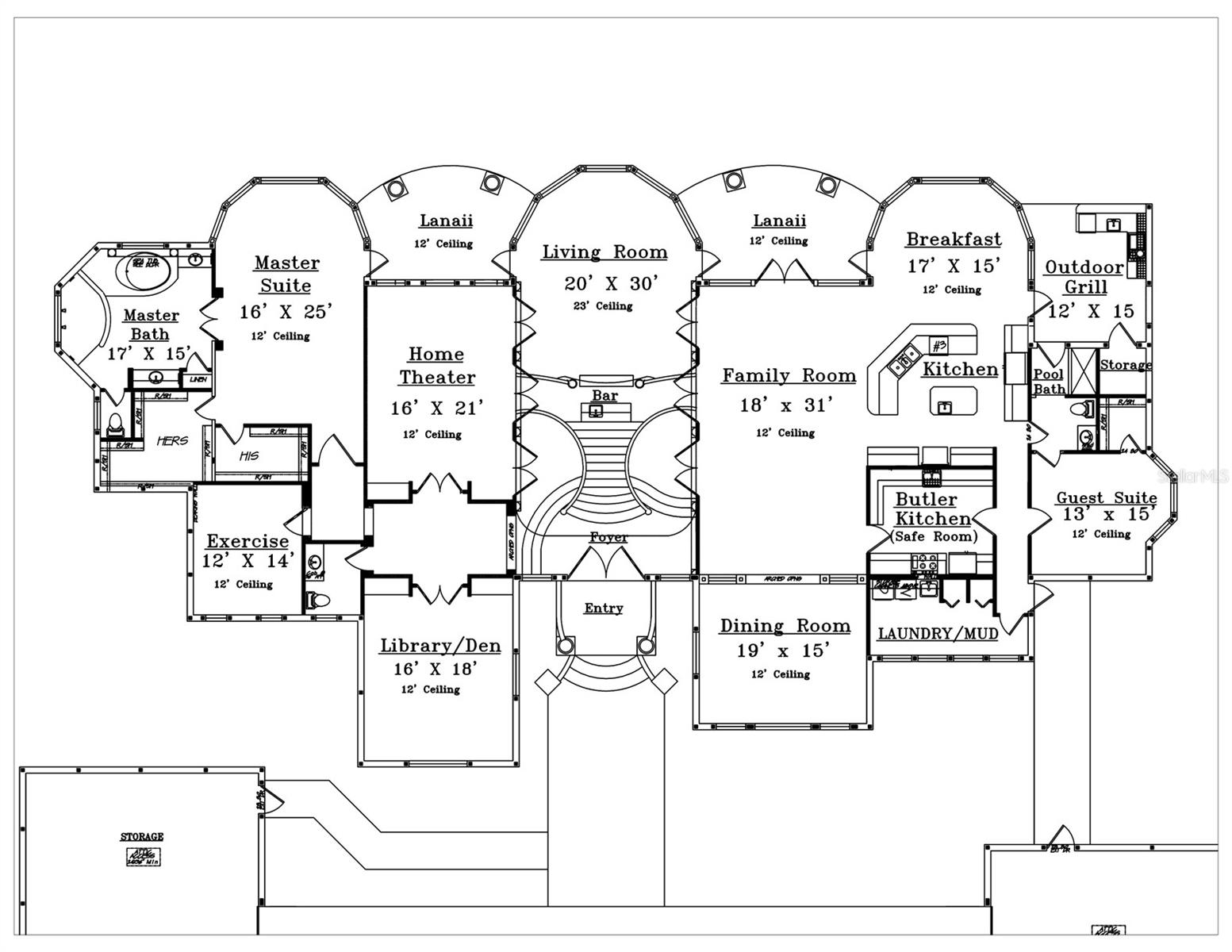
Nestled within the exclusive, double-gated enclave of Bellamere a 20 Acre 4 lot community, Villa Adriana stands as a testament to timeless Mediterranean-revival architecture and modern luxury. This extraordinary estate, spanning over 5 acres of impeccably manicured grounds, offers breathtaking, uninterrupted vistas of the tranquil Lake Kell. Crafted with a masterful touch, this 6-bedroom, 6.5-bathroom residence spans 6,820 square feet of exquisite living space. The home’s interior is a curated collection of authentic, artisanal details, including Venetian plaster walls, Baroque-style painted and gold leaf ceilings, and a dramatic travertine staircase with a custom iron rail. The ambiance is elevated by 10 Swarovski crystal chandeliers, bespoke cherry cabinetry, and polished aged granite flooring that flows throughout the home.
The gourmet kitchen is a chefs dream, featuring a suite of professional-grade Wolf/Sub-Zero appliances, perfectly complemented by a separate fully equipped butlers kitchen. The homes technological infrastructure is as sophisticated as its design, with integrated Vantage lighting controls, a state-of-the-art home theater, and a comprehensive security system. A dedicated library/office, gym, and multiple living spaces, including an oversized family room, provide a seamless fusion of functionality and grandeur.
The exterior is an entertainer’s paradise. A lavish saltwater pool with an integrated spa, sundeck, and cabana creates a resort-like atmosphere. The lush Tuscan-themed landscaping enhances the property’s "Old World" charm, while a screened gazebo on the dock, over the water, provides a serene retreat for enjoying the lake views. Four garage spaces and a workshop area offer ample room for a collection of vehicles and hobbies.
Perfectly positioned with swift access to I-275, I-75, Dale Mabry Hwy, Us 41 and the Veterans Expressway, Villa Adriana offers a secluded sanctuary while keeping the world-class amenities of Greater Tampa Bay—including upscale shopping, fine dining, professional sports, and pristine beaches—within effortless reach. Villa Adriana is more than a home; it is a legacy—a masterpiece that demands to be experienced in person.
Equipment:
- Bar Fridge
- Built-In Oven
- Convection Oven
- Dishwasher
- Disposal
- Dryer
- Electric Water Heater
- Freezer
- Ice Maker
- Indoor Grill
- Kitchen Reverse Osmosis System
- Microwave
- Range
- Range Hood
- Refrigerator
- Washer
- Water Filtration System
- Water Purifier
- Water Softener
- Wine Refrigerator
Interior Features:
- Built-in Features
- Cathedral Ceiling(s)
- Ceiling Fans(s)
- Coffered Ceiling(s)
- Crown Molding
- Dry Bar
- Eat-in Kitchen
- High Ceilings
- Kitchen/Family Room Combo
- L Dining
- Open Floorplan
- Primary Bedroom Main Floor
- Solid Wood Cabinets
- Split Bedroom
- Stone Counters
- Thermostat
- Tray Ceiling(s)
- Vaulted Ceiling(s)
- Walk-In Closet(s)
- Wet Bar
- Window Treatments
Exterior Features:
- Balcony
- French Doors
- Garden
- Lighting
- Outdoor Grill
- Outdoor Kitchen
- Private Mailbox
- Rain Gutters
View:
- Garden
- Pool
- Water
Amenities:
- Gated
Financial Information:
- Taxes: $69.00
- Tax Year: 2024
- Association Fee: $300.00
- Association Fee Frequency: Monthly
- Condo Fee Frequency: Monthly
Room Dimensions:
- Laundry: Gas Dryer Hookup, Inside,
School Information:
- Elementary School: Lutz-Hb
- Middle School: Liberty-Hb
- Junior High: Liberty-Hb
- High School: Freedom-Hb
Additional Information:
- MLS Area: 33549 - Lutz
- Price per Square Feet: $608.50
- Total Floors: 2
- Water: Well
- Lot Desc.: Conservation Area, Cul-De-Sac, In County, Landscaped, Oversized Lot, Private, Street Brick
- Construction: Block, Cement Siding, Concrete, Stucco, Frame
- Date Listed: 2025-09-22 18:07:20
- Pool: Yes
- Pool Type: Auto Cleaner, Heated, In Ground, Lap, Salt Water, Self Cleaning
- Private Spa: Yes
- Furnished: Unfurnished
- Windows: Blinds, Insulated Windows, Low-Emissivity Windows, Rods, Window Treatments, Wood Frames
- Parking: Garage Door Opener, Garage Faces Side, Golf Cart Parking, Guest, Oversized, Garage, Workshop In Garage
- Garage Spaces: 4
- Flooring: Granite, Marble, Travertine, Wood
- Roof: Membrane, Tile
- Heating: Central, Heat Recovery Unit, Propane
- Cooling: Central Air, Mini-Split Unit(S), Attic Fan
- Pets: Yes
- Sewer: Septic Tank
- Amenities: Gated
Waterfront Description:
- Lake Front
- Lake Privileges