1209 Atlantic Avenue N, New Smyrna Beach, FL 32169
- 6,606 Sq Ft ($795 per sqft)
- 5
- 4
ID: V4942890
For Sale
:
$5,250,000
Emerge into a realm where the serene symphony of ocean waves and the indulgence of luxury living blend seamlessly at this oceanfront masterpiece, boasting the highest elevation above sea level in the locale, ensuring breathtaking panoramas and exemption from flood insurance obligations. Step into a haven adorned with over 40 glistening Anderson windows, each framed with exquisite wood blinds and shutters, creating a theater of the sea's splendor. Relish unrivaled comfort as insulated, motorized window coverings offer insulating top-down and bottom-up flexibility, coupled with abundant track lighting to illuminate your home with warmth and clarity. This majestic abode is wrapped in the timeless elegance of keystone, gracing not only its sturdy exterior walls but also the charming fireplace plentiful storage, a fortified safe room, wine room, and laundry suite featuring a sweep vacuum system. Marvel at the culinary expanse provided by a 68-inch side-by-side refrigerator and freezer,
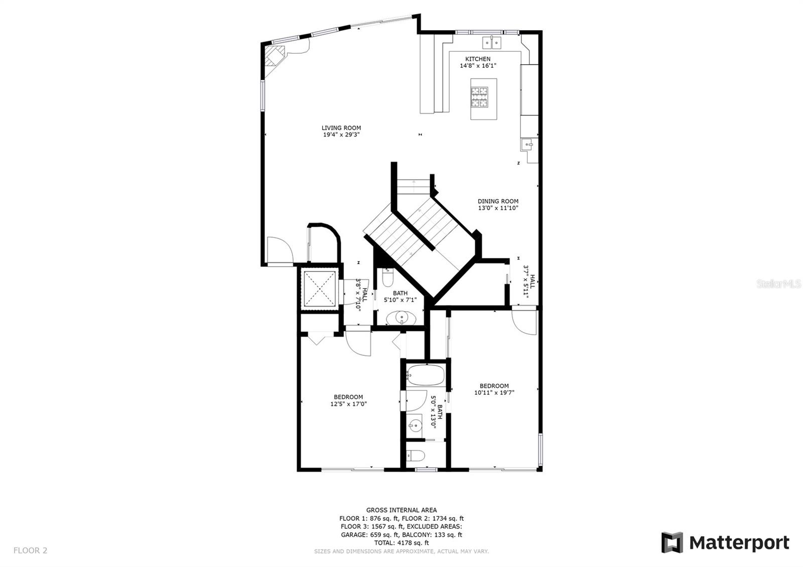
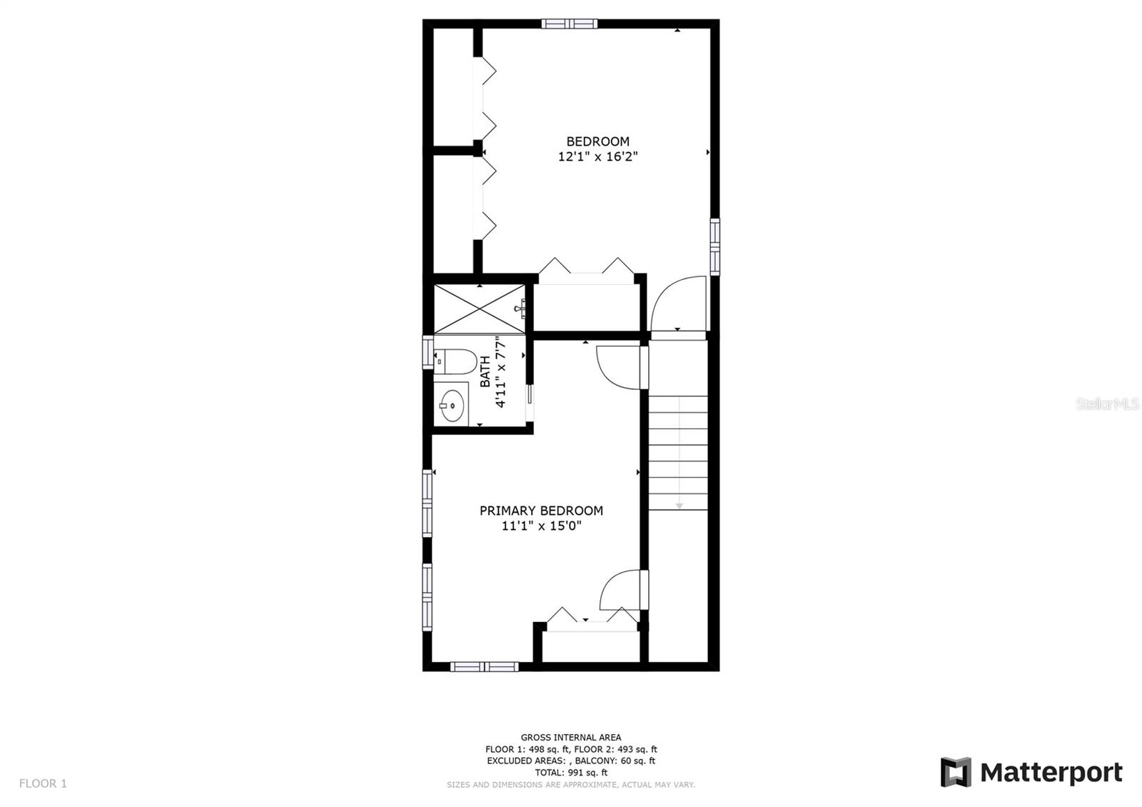
meticulously positioned under the gentle ambiance of overhead and under-cabinet lighting. A lavish walk-in pantry, spanning 5' by 8', complements the kitchen ensemble. The Master Bedroom, 70 feet diagonal length, is a crowning sanctuary with an 180-degree crystal clear view of the ocean's horizon. It is paired with a master bathroom accentuated with mirrored closet doors and a sprawling double door shoe closet. Inside your Master Bedroom you can step into your private indoor hot tub offering beautiful ocean views. IPE wood decking and railings stand guard over your ocean viewing platform, while the stately elegance of a travertine driveway welcomes you home, robust enough to support up to 30 thousand pounds, ideal for RV or boat enthusiasts complemented by convenient water and electric hookups. Submerge yourself in the sublime rooftop experience on the sky deck, where the world unfolds around you with a 360-degree survey of ocean and river each moment enhanced with amenities of hot/cold water and electric for unparalleled entertainment under the sun or stars. Accessibility harmonizes with luxury, as your private dune walkover, specifically built to be wheelchair accessible, invites you to partake in the exclusive embrace of convenient private beach access. Encircled by durable vinyl fencing, your coastal castle is crowned with a beautifully curved aluminum roof, featuring extended 70-foot single piece panels. This palatial residence invites you to indulge in the confluence of engineering excellence and design brilliance, all walls are custom built to curve throughout the home and you won't find any right angles here. A true masterpiece sculpted for the discerning connoisseur of fine beachfront living. But let's not forget about the fully equipped detached guest house featuring 2 bedrooms, full bathroom, full kitchen and in suite laundry with well maintained carpet and tile throughout as well as a private balcony with its own ocean views.
Equipment:
- Built-In Oven
- Dishwasher
- Disposal
- Dryer
- Microwave
- Refrigerator
- Washer
Interior Features:
- Built-in Features
- Elevator
- High Ceilings
- Primary Bedroom Upstairs
- Solid Surface Counters
- Split Bedroom
- Stone Counters
- Vaulted Ceiling(s)
- Walk-In Closet(s)
Exterior Features:
- Balcony
- Courtyard
- Lighting
- Outdoor Shower
- Private Mailbox
- Sliding Doors
Boat Access:
- Beach Front
- Gulf/Ocean
- Bridges - Fixed
View:
- Water
Financial Information:
- Taxes: $12,575.00
- Tax Year: 2024
Room Dimensions:
- Laundry: Inside
School Information:
- Elementary School: Coronado Beach Elem
- Middle School: New Smyrna Beach Middl
- Junior High: New Smyrna Beach Middl
- High School: New Smyrna Beach High
Additional Information:
- MLS Area: 32169 - New Smyrna Beach
- Total Square Footage: 6,606
- Price per Square Feet: $794.73
- Total Floors: 3
- Water: Public
- Lot Desc.: Coastal Construction Control Line, Conservation Area, City Limits, Private, Paved
- Construction: Block
- Date Listed: 2025-05-22 00:00:00
- Pool: N
- Private Spa: N
- Garage Description: Y
- Garage Spaces: 2
- Flooring: Tile, Wood
- Roof: Metal
- Heating: Central
- Cooling: Central Air
- Pets: Cats Ok, Dogs Ok, Yes
- Sewer: Public Sewer
Waterfront Description:
- Beach Front
- Gulf/Ocean
- Bridges - Fixed