13010 114Th Avenue, Largo, FL 33774
- 6,029 Sq Ft ($514 per sqft)
- 6
- 4
ID: TB8443998
Pending
:
$3,100,000
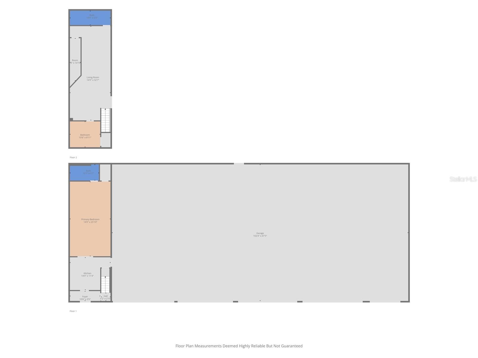
Under contract-accepting backup offers. This extraordinary 2.45-acre estate offers a rare combination of luxury living, entertainment, and equestrian amenities just minutes from the beaches—and best of all, it’s not located in a flood zone. The main residence spans over 6,000 square feet with six bedrooms, four full bathrooms, two half bathrooms, a game room, office, and a theater room. An oversized 838-square-foot-attached garage complements the home’s impressive design, while the detached facilities take this property to another level.
Car enthusiasts will appreciate the detached air-conditioned garage, large enough to accommodate up to 20 vehicles, complete with spray foam insulation and a full-length attic above the garage for additional storage. Attached to the garage is a private two-bedroom, two-bath apartment, perfect for guests, staff, or rental income, along with a professional-grade music studio that could easily be converted back to the original racquetball court.
The outdoor living area creates a true resort experience with a sparkling pool and spa, an outdoor kitchen, a tiki bar, firepit area, koi pond, and a dedicated pool house—an ideal space for entertaining or relaxing in complete privacy. For equestrian enthusiasts, this income producing stable has a separate gated entrance with dedicated stable parking with 14 stalls, a feed building, shower stalls, a bathroom, security system, and an arena/jump area. The location is ideal for riding, as the dead-end street leads directly into Walsingham Park with its scenic horse trails. Homes like this do not become available often, this is a must see property!
Equipment:
- Bar Fridge
- Dishwasher
- Disposal
- Dryer
- Gas Water Heater
- Microwave
- Range
- Refrigerator
- Washer
- Wine Refrigerator
Interior Features:
- Built-in Features
- Cathedral Ceiling(s)
- Ceiling Fans(s)
- Central Vaccum
- Crown Molding
- Eat-in Kitchen
- High Ceilings
- Kitchen/Family Room Combo
- Open Floorplan
- Solid Wood Cabinets
- Split Bedroom
- Walk-In Closet(s)
Exterior Features:
- Awning(s)
- Balcony
- Dog Run
- Lighting
- Outdoor Grill
- Outdoor Kitchen
- Private Mailbox
- Rain Gutters
- Storage
Financial Information:
- Taxes: $22.00
- Tax Year: 2024
Room Dimensions:
- Laundry: Inside
Additional Information:
- MLS Area: 33774 - Largo
- Price per Square Feet: $514.18
- Total Floors: 2
- Water: Public
- Construction: Block, Stucco
- Date Listed: 2025-11-14 21:16:52
- Pool: Yes
- Pool Type: Heated, In Ground, Lighting, Salt Water, Self Cleaning
- Private Spa: Yes
- Furnished: Partially
- Parking: Boat, Driveway, Rv Access/Parking
- Garage Spaces: 21
- Flooring: Carpet, Ceramic Tile, Laminate
- Roof: Shingle
- Heating: Central, Electric
- Cooling: Central Air, Attic Fan
- Pets: Cats Ok, Dogs Ok
- Sewer: Public Sewer