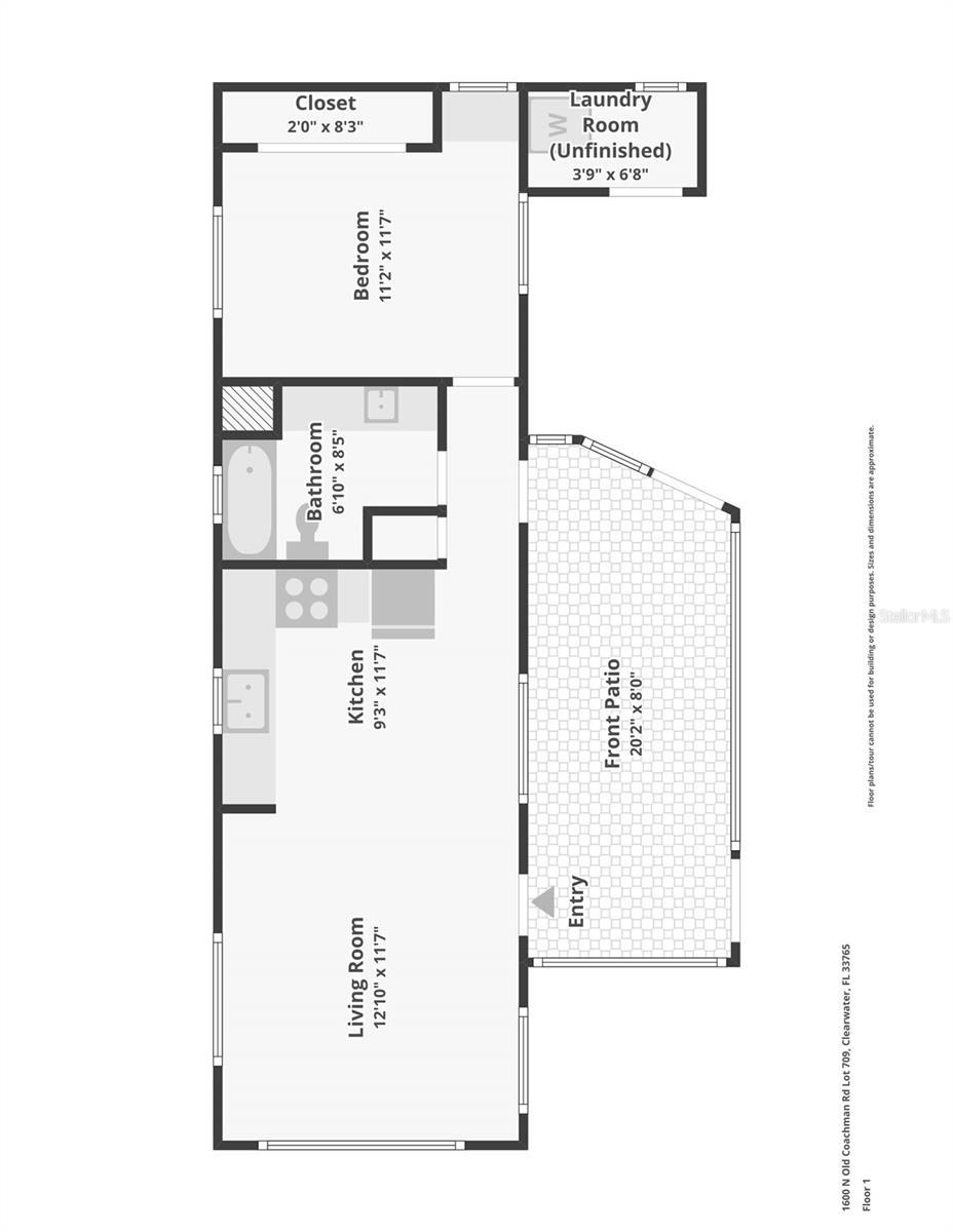
1600 Old Coachman Road N #709, Clearwater, FL 33765
- 492 Sq Ft ($142 per sqft)
- 1
- 1
ID: TB8355888
For Sale
:
$69,800
Beautiful 1-Bed 1-Bath Mobile Home - only $190 HOA in Clearwater
Non flood zone! sought after location in Clearwater and among lowest maintenance fee in Pinellas County Florida, this corner unit offers a contemporary and bright open floor plan that will please the eye and inspire the heart. The Home is being thoroughly updated and tastefully upgraded from the inside out. Features a totally resealed metal roof, newer plumbing lines and faucets, new wall panels and framing, 4 new vinyl windows, newer wood laminate and luxury vinyl flooring, re-built wood kitchen and bathroom cabinets, fresh paint inside and outside and the list goes on!. The kitchen and living area are joined together by the custom made dining table, includes a home office corner desk which smoothly blends as entertainment center. The kitchen has plenty of cabinets, among them two high and deep closets for pantry and home tools such as vacuum and step latter, double stainless steel sink and window facing the back of the unit brightens up the kitchen from morning to dusk. The tastefully color coordinated spacious bathroom includes huge linen closet, ample vanity with drawers and a medicine cabinet. The Bedroom includes spacious double door closet with built in shelving for shoes and bedroom storage, a built in drawer dresser and movable drawer dresser, decorative set of night lamps and a ceiling fan. The home comes with all furniture and window dressings (except portable fire place). Storage/laundry room comes with large commercial type washer machine with hot/cold hook ups and built in storage shelves. $190 maintenance fee includes grounds maintenance, sewer, trash, water, recreational facilities, clubhouse and community laundry room. Alcove is partially surrounded by Coachman Ridge Park, which includes walking trails, creeks, nature preserve areas and more. Located right behind is also The Long Center facility that offers Olympic sized swimming pool, gymnasium, soccer fields, biking and running trails, etc, they offer great discounts to seniors. 15 minutes drive to Clearwater Beach and shorter walking and driving distances to Countryside Mall, Shopping Plazas, Hospitals, Restaurants and Entertainment Venues all around. Alcove is resident owned community, land occupying the home equates to one share which comes included in the price (NOT LOT RENT). This is a 55+ community, no pets, and no leasing allowed. Note: MINIMUM CREDIT SCORE FOR BUYERS IS 725.
Equipment:
- Electric Water Heater
- Range
- Refrigerator
Interior Features:
- Eat-in Kitchen
- Kitchen/Family Room Combo
- Living Room/Dining Room Combo
- Primary Bedroom Main Floor
- Thermostat
- Window Treatments
Exterior Features:
- Lighting
- Other
Amenities:
- Clubhouse
Financial Information:
- Taxes: $75.00
- Tax Year: 2024
- Association Fee: $190.00
- Association Fee Frequency: Monthly
- Condo Fee Frequency: Monthly
Room Dimensions:
- Laundry: Laundry Room, Outside
Additional Information:
- MLS Area: 33765 - Clearwater/Sunset Point
- Price per Square Feet: $141.87
- Water: Public
- Construction: Metal Siding
- Date Listed: 2025-03-04 00:42:00
- Pool: No
- Private Spa: No
- Flooring: Laminate, Luxury Vinyl
- Roof: Other
- Heating: Central
- Cooling: Central Air
- Pets: No
- Sewer: Public Sewer
- Amenities: Clubhouse