1965 Lake Markham Preserve Trail, Sanford, FL 32771
- 9,239 Sq Ft ($454 per sqft)
- 5
- 5
ID: O6350037
Pending
:
$4,199,000
Experience the pinnacle of luxury living in this one-of-a-kind waterfront estate, ideally positioned on a double lot within the prestigious guard-gated community of Lake Markham Preserve, just minutes from Lake Mary, Longwood, Heathrow, and Sanford. This magnificent 5-bedroom, 7-bath, 6-car-garage residence spans over 2 acres of manicured grounds, offering a seamless blend of wellness, recreation, and refined sophistication.
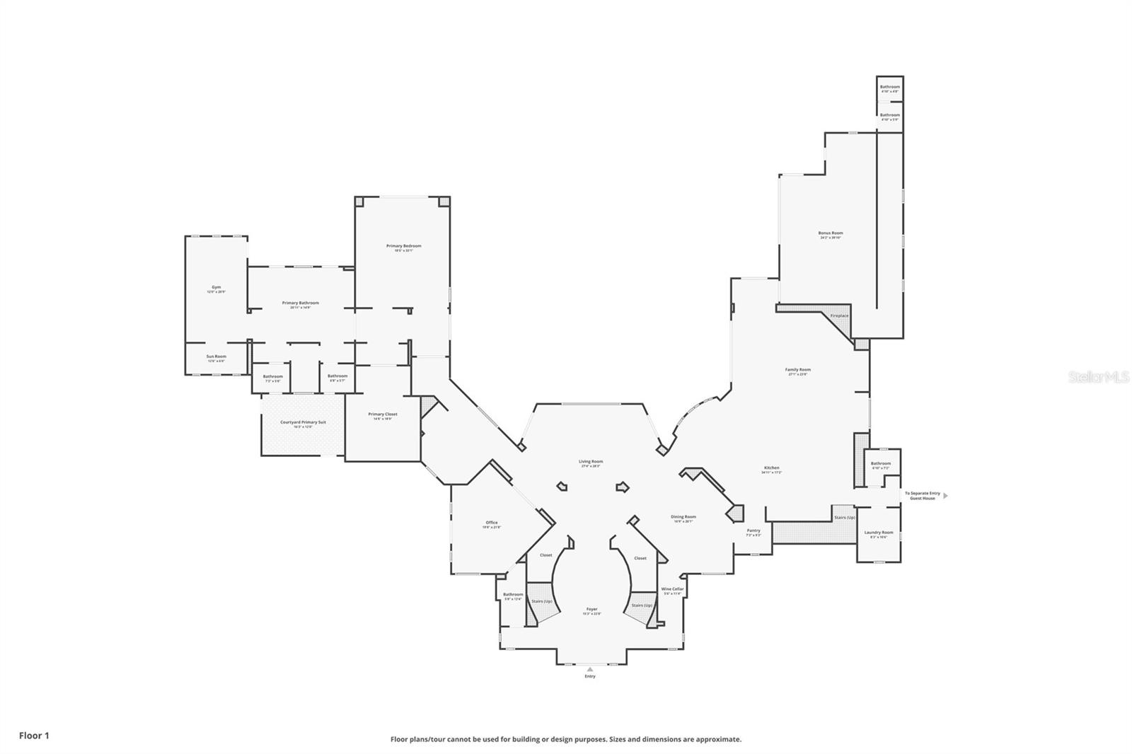
A grand two-story foyer welcomes you with a sweeping double staircase, soaring ceilings, and breathtaking views of the sparkling infinity-edge pool that appears to flow directly into the lake. Exceptional craftsmanship defines every space, from the rich wood detailing in the executive office to the elegant finishes throughout the formal living and dining rooms.
The primary wing is a private sanctuary devoted to relaxation and health, featuring sea-salt walls and a sea-salt therapy room—a luxurious and restorative feature known to purify the air, improve respiratory wellness, and promote deep relaxation. French doors open from the primary suite and home office to a Tuscan-style courtyard, creating a tranquil retreat complete with landscaping and a soothing water feature. Inside the suite, enjoy a massage room, sauna, private fitness studio, and spa-inspired bath — your personal wellness haven.
The open-concept chef’s kitchen flows effortlessly into the spacious family room and entertainment wing, where you’ll find a game room with a private bowling lane, ideal for hosting and entertaining. Large windows and glass doors fill the home with natural light and frame sweeping views of the pool, courtyard, and lake.
The second floor of the residence continues the home’s sense of grandeur and comfort, offering a private retreat for family and guests alike. Upstairs, you’ll find three beautifully appointed en-suite bedrooms, each with its own luxurious bath and thoughtfully designed to provide privacy and comfort. The spacious theater room is perfect for movie nights or sporting events, creating a cinematic experience within the comfort of home. A large balcony stretches across the back of the home, offering sweeping views of the infinity-edge pool, lush grounds, and shimmering Lake Markham—the perfect setting for morning coffee or evening relaxation while taking in the tranquil lakefront panorama.
Outdoors, the resort ambiance takes center stage. A heated infinity-edge pool and spa, and summer kitchen create the perfect setting for gatherings and sunset dinners. A private boat dock with a covered lift provides direct access to Lake Markham, inviting peaceful mornings on the water or evenings spent boating under the stars. Recreational features abound, including a lighted basketball court, professional shuffleboard court, tiki hut cabana, all within fully fenced and landscaped grounds offering privacy and serenity.
A detached guest house provides comfort and independence for family or visitors, featuring its own living area, kitchen, and bath. Additional highlights include a custom wine cellar, whole-house generator, circular driveway, and ample guest parking.
Designed for the discerning professional who values both health and sophistication, this estate seamlessly combines wellness-oriented design, European-inspired elegance, and resort-style living in one breathtaking lakefront retreat — a true masterpiece where luxury meets longevity.
Equipment:
- Bar Fridge
- Built-In Oven
- Cooktop
- Dishwasher
- Disposal
- Dryer
- Electric Water Heater
- Exhaust Fan
- Microwave
- Refrigerator
- Washer
- Wine Refrigerator
Interior Features:
- Ceiling Fans(s)
- Crown Molding
- Eat-in Kitchen
- High Ceilings
- Kitchen/Family Room Combo
- Open Floorplan
- Primary Bedroom Main Floor
- Sauna
- Solid Surface Counters
- Solid Wood Cabinets
- Split Bedroom
- Thermostat
- Tray Ceiling(s)
- Vaulted Ceiling(s)
- Walk-In Closet(s)
- Wet Bar
Exterior Features:
- Balcony
- French Doors
- Outdoor Grill
- Outdoor Kitchen
- Outdoor Shower
- Rain Gutters
- Sauna
- Sliding Doors
View:
- Pool
- Water
Amenities:
- Gated
- Security
Financial Information:
- Taxes: $36.00
- Tax Year: 2024
- Association Fee: $1,950.00
- Association Fee Frequency: Quarterly
- Condo Fee Frequency: Quarterly
Room Dimensions:
- Laundry: Corridor Access
School Information:
- Elementary School: Wilson Elementary School
- Middle School: Markham Woods Middle
- Junior High: Markham Woods Middle
- High School: Seminole High
Additional Information:
- MLS Area: 32771 - Sanford/Lake Forest
- Price per Square Feet: $454.49
- Water: Canal/Lake For Irrigation, Public
- Lot Desc.: In County, Oversized Lot, Sidewalk
- Construction: Block, Stucco, Frame
- Date Listed: 2025-11-03 15:35:57
- Pool: Yes
- Pool Type: Auto Cleaner, Gunite, Heated, In Ground, Infinity, Lighting, Outside Bath A
- Private Spa: Yes
- Windows: Blinds
- Parking: Circular Driveway, Driveway, Garage Faces Rear, Garage Faces Side, Golf Cart Garage, Golf Cart Parking, Oversized
- Garage Spaces: 6
- Flooring: Brick, Carpet, Ceramic Tile, Marble, Travertine, Wood
- Roof: Tile
- Heating: Central, Heat Pump, Zoned
- Cooling: Central Air, Zoned
- Pets: Yes
- Sewer: Septic Tank
- Amenities: Gated, Security
Waterfront Description:
- Lake Front