215 64Th Street, Holmes Beach, FL 34217
- 2,690 Sq Ft ($1,206 per sqft)
- 4
- 3
ID: A4671772
For Sale
:
$3,245,000
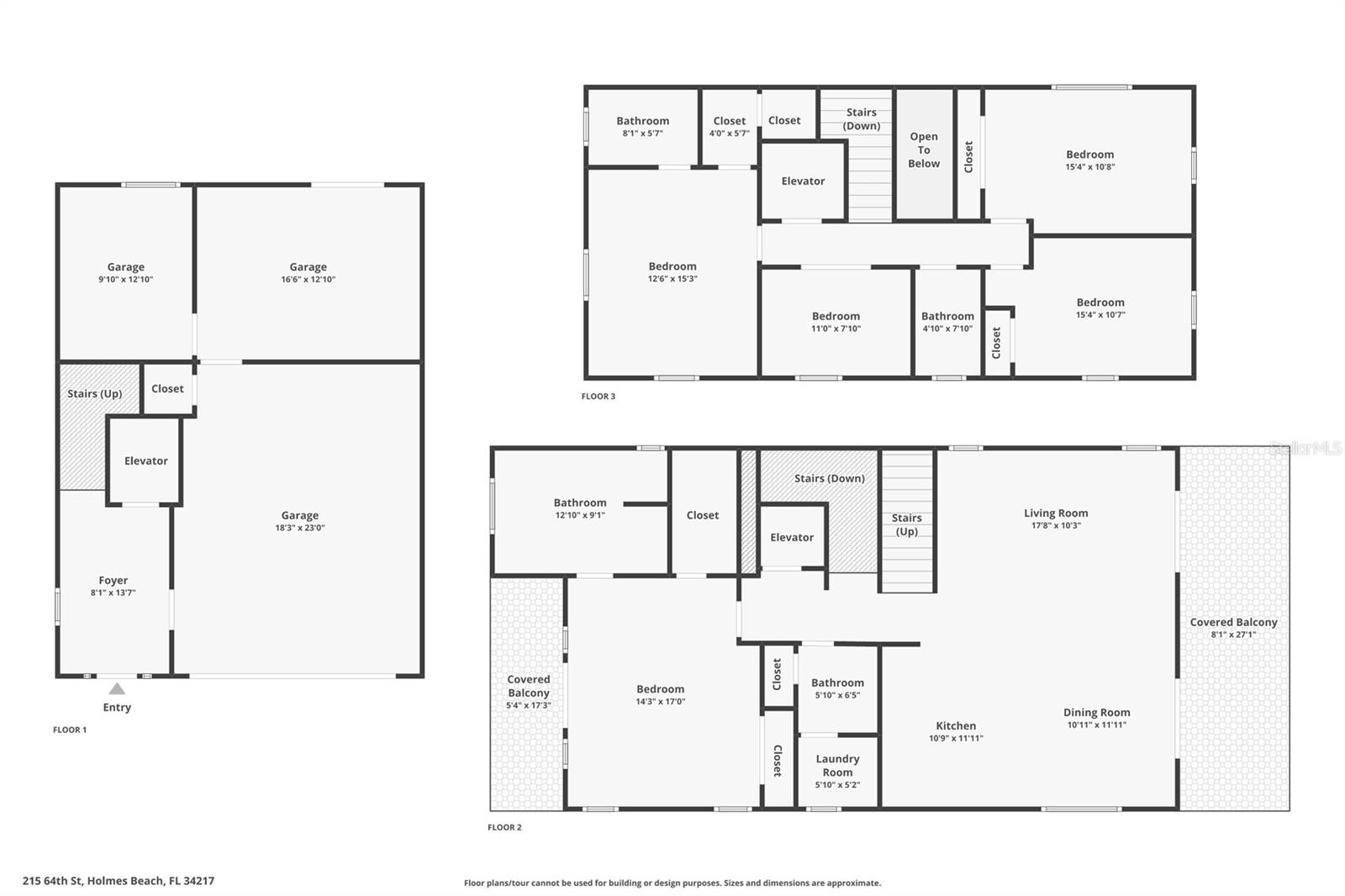
Discover the Coastal Chic Beach House, a stunning residence featuring four bedrooms and 3.5 baths, which has undergone an impressive transformation by renowned interior designer Adrian Griffin. This home is designed for multi-generational living and boasts an array of sophisticated interior elements including an elevator and a high end Aerus whole house air filtration system, a custom bunk room, and exquisite designer tile and millwork. The main floor showcases a spacious kitchen and dining area equipped with luxurious quartz countertops and new LG and GE appliances. Designed with an open layout, the living space is bright and inviting, adorned with modern coastal furnishings. Glass doors seamlessly connect the interior to the sun deck, perfect for soaking up the beautiful Florida weather. A conveniently placed staircase provides easy access to the pool and spa area. The primary suite offers easy access to an open deck on the front of the home. The expansive bathroom has a walk in shower and soaking tub with custom coastal tile. On the upper
level, you will find an ensuite, two generously sized bedrooms, a three-person bunk room, and an additional large bathroom. The decor throughout reflects a contemporary coastal aesthetic that exudes timeless elegance. The exterior features a a large private back yard with a Tiki Hut and generously sized freeform pool, recently resurfaced, complemented by a custom spa. Lush tropical landscaping is enhanced by programmable color lighting that illuminates the front and back gardens. The covered lanai offers a shaded and rain proof area ideal for entertaining, while glass doors lead to a bonus room equipped with ping-pong table.
Conveniently situated within walking distance to the beach and local shops and restaurants, this property also provides easy access to a trolley stop. This beach house is an ideal second home or vacation rental, fully furnished and ready for occupancy with everything needed from beach gear to baby essentials. To schedule your exclusive private showing, please contact the listing agent—24-hour notice is appreciated.
Equipment:
- Built-In Oven
- Dishwasher
- Disposal
- Dryer
- Electric Water Heater
- Exhaust Fan
- Range
- Refrigerator
- Washer
Interior Features:
- Ceiling Fans(s)
- Crown Molding
- Elevator
- High Ceilings
- Kitchen/Family Room Combo
- Living Room/Dining Room Combo
- Open Floorplan
- Solid Surface Counters
- Solid Wood Cabinets
- Walk-In Closet(s)
- Window Treatments
Exterior Features:
- Balcony
- French Doors
- Lighting
- Outdoor Shower
Financial Information:
- Taxes: $13,043.00
- Tax Year: 2025
Room Dimensions:
- Laundry: Inside, Laundry Room
School Information:
- Elementary School: Anna Maria Elementary
- Middle School: Martha B. King Middle
- Junior High: Martha B. King Middle
- High School: Manatee High
Additional Information:
- MLS Area: 34217 - Holmes Beach/Bradenton Beach
- Price per Square Feet: $1,206.32
- Total Floors: 3
- Water: Public
- Construction: Block, Frame
- Date Listed: 2025-11-19 17:33:23
- Pool: Yes
- Pool Type: Heated, In Ground, Lighting
- Private Spa: Yes
- Furnished: Turnkey
- Windows: Blinds
- Parking: Garage Door Opener
- Garage Spaces: 2
- Flooring: Bamboo, Ceramic Tile
- Roof: Metal
- Heating: Central, Zoned
- Cooling: Central Air
- Pets: Yes
- Sewer: Public Sewer