2915 Harbor View Avenue W, Tampa, FL 33611
- 4,558 Sq Ft ($834 per sqft)
- 4
- 4
ID: TB8458302
For Sale
:
$3,800,000
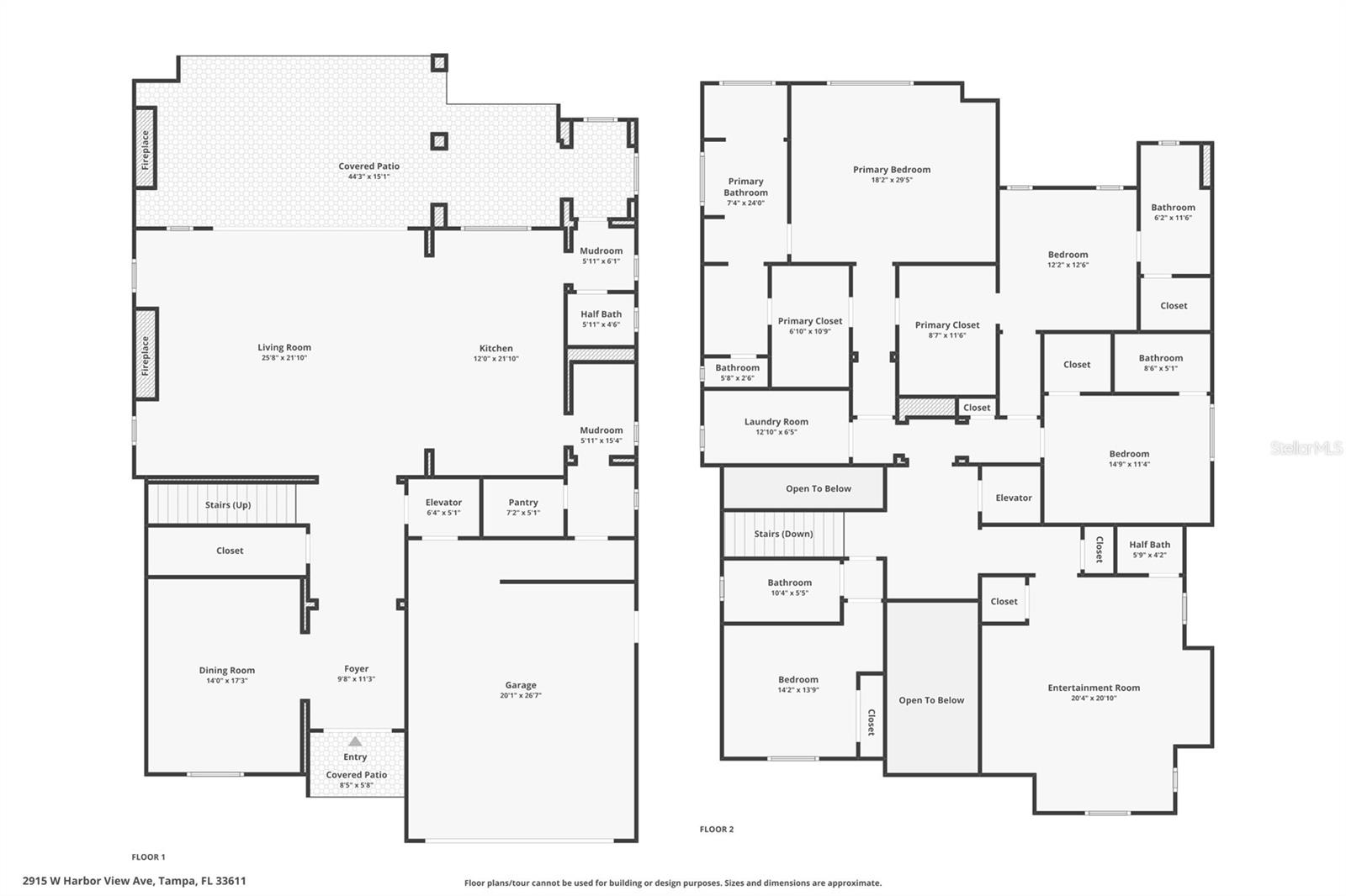
Ideally positioned on a picturesque, sidewalk-lined street in the heart of Bayshore Beautiful, just moments from iconic Bayshore Boulevard, this nearly new custom residence by Taralon Homes delivers refined architectural presence and elevated living throughout. A pavered circular drive, travertine entry steps, and classic Bevolo gas lanterns create a striking arrival. Inside, a grand foyer with soaring ceilings and statement Restoration Hardware lighting introduces an open, light-filled floor plan with 7.5" naturally aged Medallion wide-plank flooring, 8 solid-core interior doors, and level-five smooth drywall. Formal dining with custom built-in cabinetry and a full wet bar featuring Sub-Zero refrigeration and a wine fridge anchors the main level alongside an expansive great room. This room is highlighted by a marble-clad electric fireplace wall and wall-length sliding glass doors that open seamlessly to the outdoors. The chef’s kitchen pairs sculptural design with exceptional function, featuring a dramatic marble waterfall island, dual Thermador refrigerators, a six-burner Thermador gas range with custom hood, galley sink with on-demand filtered water, under-cabinet lighting, and built-in refrigeration drawers. A secondary wet bar with wine refrigeration and ice machine connects directly to the outdoor bar, while a fully equipped scullery with marble counters, additional dishwasher, and walk-in pantry provides discreet convenience. A custom drop zone with built-ins sits just off the garage. Indoor-outdoor living is effortless at the covered lanai with travertine flooring, drop-down screens, recessed lighting, speakers, and a fully appointed alfresco kitchen, overlooking the heated saltwater pool and spa framed by lush landscaping and hardscape. Upstairs, a flexible media lounge with custom cabinetry and wet bar complements generously sized secondary suites with custom closets and marble-finished en-suite baths. The primary suite is a serene retreat with coffered ceilings, dual custom walk-in closets, and a spa-inspired bath featuring a soaking tub, oversized walk-in shower with jewel showerheads, marble vanities with makeup station, towel warmer, and Toto fixtures. Additional highlights include elevator access to all levels, impact-rated windows and doors, spray-foam attic insulation, two natural-gas wall-mounted tankless water heaters, pre-wired low-voltage security and surround sound, Lutron lighting, integrated speakers, owned security cameras, a pool bath with marble waterfall vanity, and a spacious laundry room with built-ins. The two-car garage with lift offers epoxy flooring, rear yard access, and integrated irrigation controls. Enhanced by a Generac whole-home generator and meticulous attention to detail, this exceptional residence offers timeless luxury just steps from Tampa’s most celebrated waterfront promenade.
Equipment:
- Bar Fridge
- Dishwasher
- Disposal
- Gas Water Heater
- Ice Maker
- Kitchen Reverse Osmosis System
- Microwave
- Range
- Range Hood
- Refrigerator
- Wine Refrigerator
Interior Features:
- Built-in Features
- Ceiling Fans(s)
- Coffered Ceiling(s)
- Crown Molding
- Dumbwaiter
- Eat-in Kitchen
- Elevator
- High Ceilings
- Kitchen/Family Room Combo
- PrimaryBedroom Upstairs
- Solid Wood Cabinets
- Stone Counters
- Tray Ceiling(s)
- Walk-In Closet(s)
- Wet Bar
Exterior Features:
- Dog Run
- Lighting
- Outdoor Grill
- Private Yard
- Sidewalk
- Sliding Doors
Financial Information:
- Taxes: $8.00
- Tax Year: 2024
Room Dimensions:
- Laundry: Laundry Chute, Laundry Ro
School Information:
- Elementary School: Roosevelt-Hb
- Middle School: Coleman-Hb
- Junior High: Coleman-Hb
- High School: Plant-Hb
Additional Information:
- MLS Area: 33611 - Tampa
- Price per Square Feet: $833.70
- Total Floors: 2
- Water: Public
- Lot Desc.: Flood Insurance Required, Floodzone, City Limits, In County, Sidewalk, Paved
- Construction: Block, Stucco, Frame
- Date Listed: 2025-12-23 16:17:26
- Pool: Yes
- Pool Type: Auto Cleaner, Deck, Fiber Optic Lighting, Gunite, Heated, In Ground, Lighti
- Private Spa: Yes
- Furnished: Unfurnished
- Parking: Circular Driveway, Driveway, Garage Door Opener, Other
- Garage Spaces: 2
- Flooring: Ceramic Tile, Hardwood, Marble
- Roof: Shingle
- Heating: Central, Electric, Natural Gas
- Cooling: Central Air
- Pets: Yes
- Sewer: Public Sewer