4348 Harborpointe Drive, Port Richey, FL 34668
- 6,676 Sq Ft ($524 per sqft)
- 4
- 5
ID: W7875577
For Sale
:
$3,499,000
If Heaven on Earth had an address, this would probably be it.
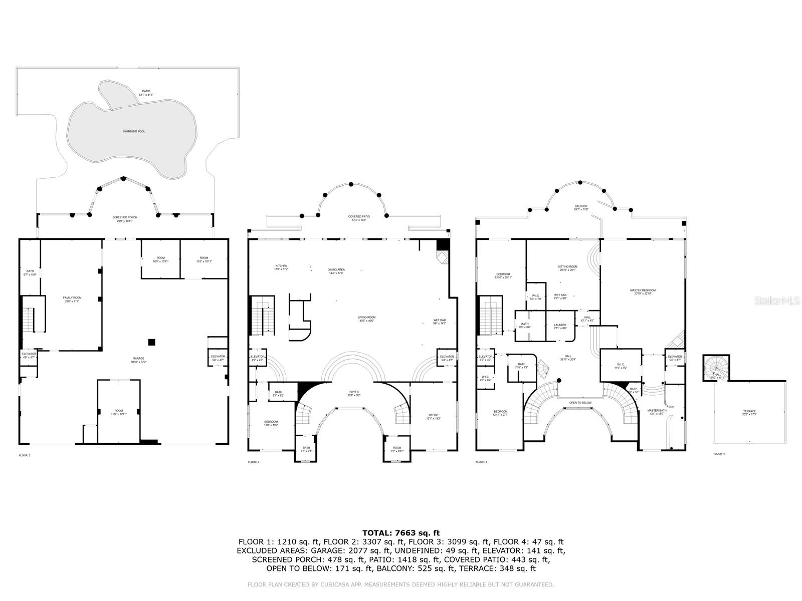
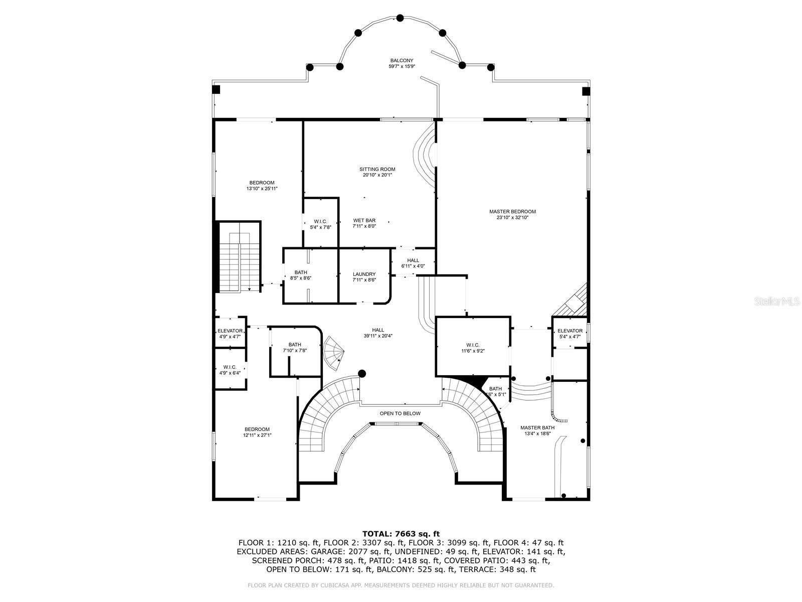
Four bedrooms. Five and a half bathrooms. Two elevators. Six balconies. A rooftop terrace. A six-car garage. A chef’s kitchen. A sunken bar in the living room. Two laundry areas. Storage throughout. And a master suite so expansive, it’s probably larger than most New York City apartments. Set inside Harborpointe—a 24-hour manned, double-gated peninsula community on the Gulf of America—this estate sits where the Cotee River meets the Gulf, offering boat activity by day and a softly lit marina skyline by night. The views are constant. The sunsets? Absolutely unforgettable.
Inside, bold elegance meets elevated living.
The private speakeasy, with its moody ambiance and signature Gucci wallpaper, is a true hidden gem—ideal for intimate gatherings, cocktail hours, or simply enjoying a space that feels unlike anything else. Two private elevators serve all three floors of the home, while a handcrafted wooden staircase leads to the rooftop terrace, where panoramic views and golden-hour skies become part of your daily rhythm.
There are four large bedrooms, each with its own full bath, plus an additional full bathroom and a half bath. Three of the ensuite bathrooms have been tastefully upgraded. But the primary suite stands apart. Outfitted with gorgeous large-format tile flooring, it offers water views so immersive, waking up may feel like you’re aboard a luxury cruise ship. A fireplace enhances the sleeping area, while just beyond—within the suite itself—is a private lounge featuring a wet bar, sink, fridge, and its own waterfront views—a world within a world. Spaces like this exist in only a handful of homes, anywhere.
The estate also features six balconies, including two oversized outdoor living spaces—one on the main floor, the other above. The chef’s kitchen combines elegance with functionality, while the sunken bar in the living room adds an effortlessly cool layer to your entertaining experience.
Upstairs, a full laundry room offers convenience and space, with a second, thoughtfully designed laundry area on the main level.
Outside, the resort-style pool and spa provide a stunning backdrop for both relaxation and entertaining. The rare six-car garage is a true standout—whether for collectors, enthusiasts, or anyone who simply expects more.
Additional upgrades include a new Culligan water softener, a recently replaced A/C unit, and an updated tankless gas water heater—one of two in the home—reflecting the care and investment poured into little details.
Your deeded boat slip is just steps away.
Home received no water or damage during Hurricanes Helene or Milton due to how high this property sits above sea level.
Equipment:
- Bar Fridge
- Cooktop
- Microwave
- Range
- Range Hood
- Refrigerator
- Wine Refrigerator
Interior Features:
- Ceiling Fans(s)
- Coffered Ceiling(s)
- Crown Molding
- Eat-in Kitchen
- Elevator
- Kitchen/Family Room Combo
- Living Room/Dining Room Combo
- PrimaryBedroom Upstairs
- Solid Surface Counters
- Solid Wood Cabinets
- Split Bedroom
- Stone Counters
- Thermostat
- Tray Ceiling(s)
- Wet Bar
- Window Treatments
Exterior Features:
- Balcony
View:
- Water
Amenities:
- Basketball Court
- Cable TV
- Clubhouse
- Fitness Center
- Gated
- Pickleball Court(s)
- Pool
- Spa/Hot Tub
- Storage
- Tennis Court(s)
Financial Information:
- Taxes: $42.00
- Tax Year: 2024
- Association Fee: $960.00
- Association Fee Frequency: Quarterly
- Condo Fee Frequency: Quarterly
Room Dimensions:
- Laundry: Common Area, Inside, Laun
Additional Information:
- MLS Area: 34668 - Port Richey
- Price per Square Feet: $524.12
- Total Floors: 2
- Water: Public
- Construction: Block, Stucco, Frame
- Date Listed: 2025-06-18 06:00:00
- Pool: Yes
- Pool Type: Gunite, In Ground
- Garage Spaces: 6
- Flooring: Ceramic Tile, Tile, Wood
- Roof: Tile
- Heating: Central, Electric
- Cooling: Central Air
- Pets: Yes
- Sewer: Public Sewer
- Amenities: Basketball Court, Cable Tv, Clubhouse, Fitness Center, Gated, Pickleball Court(S), Pool, Spa/Hot Tub, Storage, Tennis Court(S)
Waterfront Description:
- Gulf/Ocean
- River Front