45 Martin Luther King Jr Street W #60, Arcadia, FL 34266
- 1,800 Sq Ft ($36 per sqft)
- 3
- 2
ID: C7519297
For Sale
:
$65,000
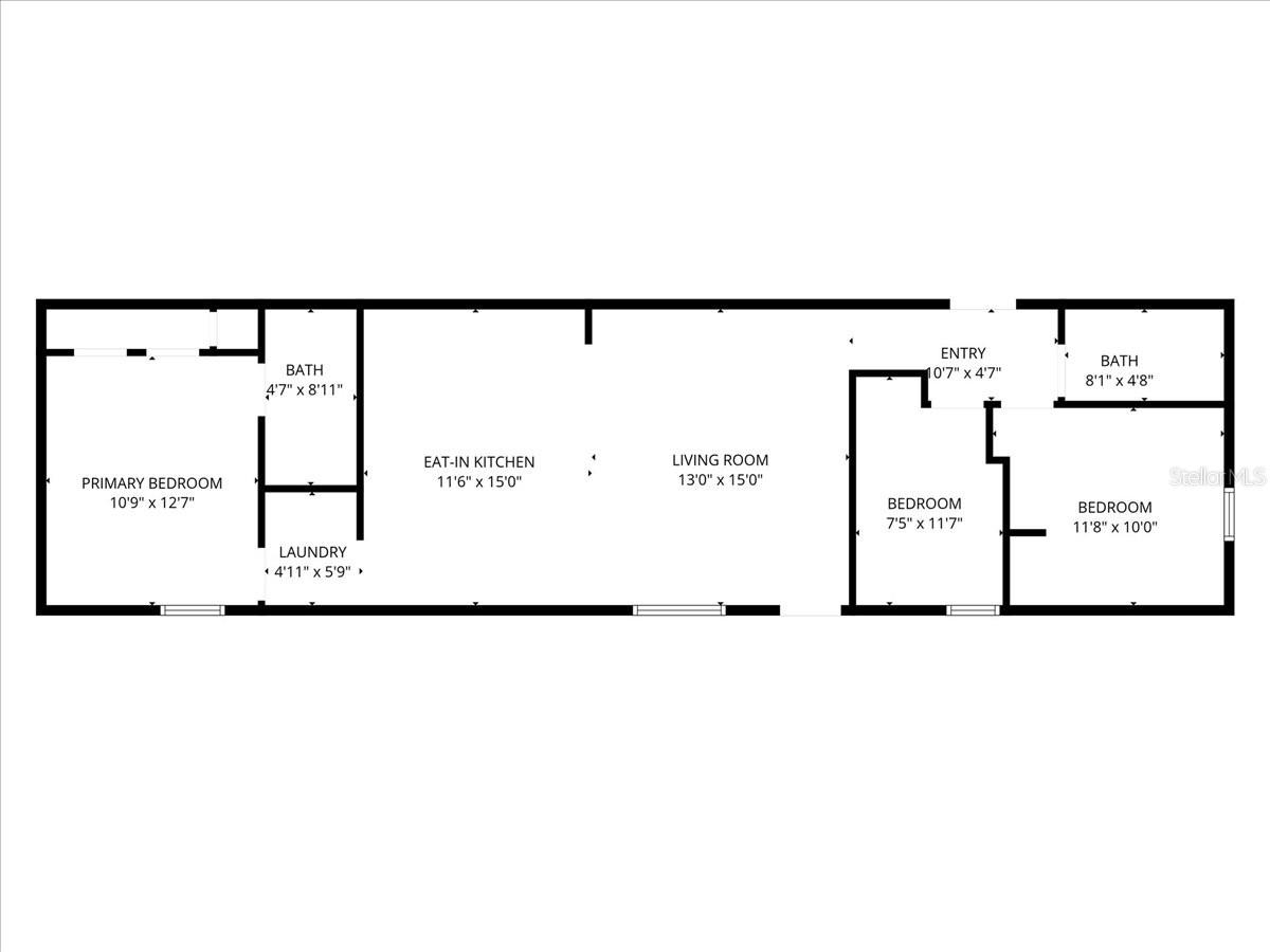
Welcome to the friendly Arcadia community of Park Place Estates—ideal for year-round living or a seasonal winter retreat. This 2023 mobile home, which can be relocated if desired, offers flexibility along with comfort. The spacious 3-bedroom, 2-bath home provides approximately 1,800 square feet of living space and is situated on a leased lot. Buyer approval is required. The 2026 lot rent is $784.00 per month, plus a monthly pass-through charge that varies and includes community electric, water, sewer, and community lawn care. No ad valorem taxes apply. The open-concept living area flows seamlessly into the kitchen and dining space, creating a comfortable and functional layout. The living room features ceiling fans, neutral finishes, and easy-care flooring throughout. The kitchen offers abundant wood cabinetry for ample storage, generous counter space, and includes a range and refrigerator. Recessed lighting and a practical design make this space well suited for everyday living, relaxing, or casual entertaining. The primary bedroom is nicely sized and located at one end of the home, featuring double-door closets and an attached full bathroom with a single-sink vanity and additional storage. The guest bedrooms are located at the opposite end of the home, providing privacy for visiting friends or family, and share a full bathroom. The laundry area, complete with a washer and dryer (2023), is conveniently located in the guest hallway. Additional features include a new A/C system and hot water heater (2023), a new roof (2023), gutters and downspouts, and a new 8x10 wood storage shed—offering added value and peace of mind. Centrally located about one hour north of Fort Myers and one hour east of Sarasota, Arcadia is a welcoming small town known for its rich history and relaxed lifestyle. The area features a historic downtown with antique shops, local restaurants, and specialty stores, along with a calendar of community events including the DeSoto County Fair and Watermelon Festival. Residents enjoy easy access to outdoor recreation at the Peace River, Morgan Park, and nearby Myakka River State Park. With convenient access to U.S. 17 and State Road 70, traveling throughout the region is simple while still enjoying the charm and slower pace of small-town living. **PLEASE ENJOY THE 3D INTERACTIVE VIRTUAL TOUR ASSOCIATED WITH THIS LISTING**
Equipment:
- Range
- Range Hood
- Refrigerator
Interior Features:
- Ceiling Fans(s)
- Crown Molding
- Eat-in Kitchen
- High Ceilings
- Living Room/Dining Room Combo
- Open Floorplan
- Solid Wood Cabinets
Exterior Features:
- Lighting
- Rain Gutters
- Storage
Financial Information:
- Tax Year: 2025
Room Dimensions:
- Laundry: Electric Dryer Hookup, In
Additional Information:
- MLS Area: 34266 - Arcadia
- Price per Square Feet: $36.11
- Water: Public
- Construction: Metal Frame, Metal Siding
- Date Listed: 2025-12-23 19:20:04
- Pool: No
- Furnished: Unfurnished
- Parking: Driveway, Off Street
- Flooring: Linoleum
- Roof: Other
- Heating: Central
- Cooling: Central Air
- Sewer: Public Sewer