479 South Creek Drive, Osprey, FL 34229
- 4,261 Sq Ft ($656 per sqft)
- 5
- 5
ID: N6141722
For Sale
:
$2,795,000
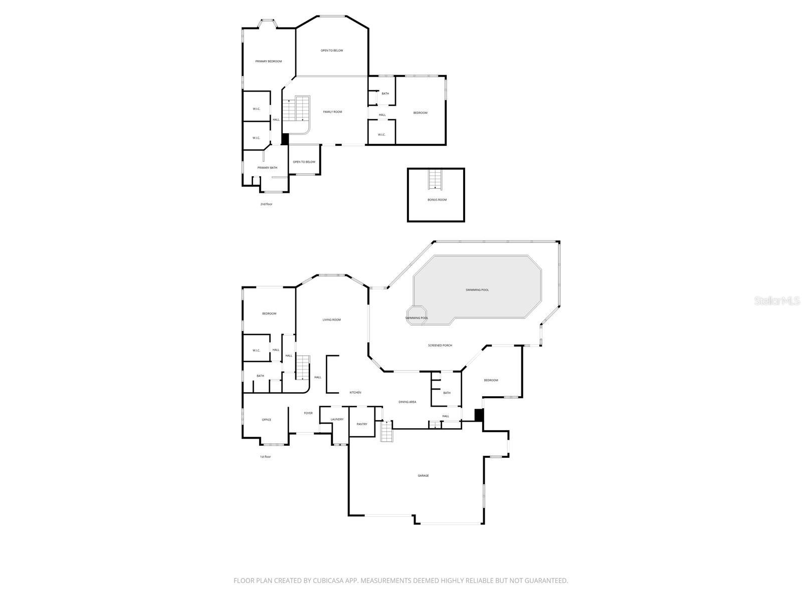
Positioned on South Creek just off the Intracoastal Waterway with beautiful views and over 130 FEET of WATERFRONT, this 5-bedroom, 5.5-bath coastal estate offers over 4,261 square feet of refined waterfront living anchored by a truly spectacular backyard oasis. The heated saltwater PebbleTec pool, featuring an impressive 10-FOOT DEPTH, is paired with a separate spa and framed by elegant travertine pavers, with a covered dining area providing a perfect setting for shaded entertaining. An expansive waterfront deck extends beyond the screened lanai for lounging and alfresco dinners overlooking the water. Steps lead to a private dock with a 10,000-pound boat lift and a DEDICATED KAYAK LAUNCH, creating seamless access to the Intracoastal lifestyle. Inside, five generously sized bedrooms each feature ensuite baths and large walk-in closets, with two bedrooms conveniently located on the first floor along with a dedicated office, den, or bonus room. The renovated kitchen is designed for both beauty and function with a Thermador cooktop, Jenn- Airconvection and built-in ovens, a large island, and a passthrough window for effortless outdoor entertaining. The dining area overlooks the pool and includes hurricane-impact sliding doors, a coffee or dry bar with mini-fridge, and additional custom cabinetry for storage. The living room is highlighted by soaring ceilings, transom windows, additional hurricane impact sliding glass doors, and charming shiplap ceiling details, creating a light-filled coastal ambiance. Upstairs, three additional bedrooms and a loft gathering area overlook the living space below, with the true primary suite on the second level along with two waterfront-view bedrooms, all featuring ensuite baths and generous closets, plus a second-floor laundry hookup for added convenience. A spacious three-car garage and elegant U-shaped driveway complete the home. This home has been replumbed and features new lift motors (2025). Located within a gated community offering a basketball court, day dock, playground, and low HOA fees, this property is just 5 miles to Nokomis Beach on Casey Key, 15 miles to downtown Sarasota, 6 miles to the Island of Venice, and 6 miles to Sarasota Memorial Hospital, with Oscar Scherer State Park right nearby for nature lovers and outdoor enthusiasts.
Equipment:
- Bar Fridge
- Built-In Oven
- Convection Oven
- Cooktop
- Dishwasher
- Disposal
- Dryer
- Electric Water Heater
- Microwave
- Refrigerator
Interior Features:
- Cathedral Ceiling(s)
- Ceiling Fans(s)
- Central Vaccum
- Crown Molding
- Dry Bar
- High Ceilings
- Solid Wood Cabinets
- Split Bedroom
- Stone Counters
- Thermostat
- Walk-In Closet(s)
- Window Treatments
Exterior Features:
- Hurricane Shutters
- Lighting
- Other
- Outdoor Shower
- Private Mailbox
- Rain Gutters
- Sliding Doors
View:
- Water
Amenities:
- Basketball Court
- Gated
- Other
- Park
Financial Information:
- Taxes: $11,095.00
- Tax Year: 2024
- Association Fee: $450.00
- Association Fee Frequency: Quarterly
- Condo Fee Frequency: Quarterly
Room Dimensions:
- Laundry: Inside, Laundry Room, Oth
School Information:
- Elementary School: Laurel Nokomis Elementary
- Middle School: Laurel Nokomis Middle
- Junior High: Laurel Nokomis Middle
- High School: Venice Senior High
Additional Information:
- MLS Area: 34229 - Osprey
- Price per Square Feet: $655.95
- Water: Public
- Lot Desc.: In County, Landscaped, Paved
- Construction: Concrete, Stucco
- Date Listed: 2025-12-02 02:31:21
- Pool: Yes
- Pool Type: Gunite, Heated, In Ground, Lighting, Salt Water
- Private Spa: Yes
- Furnished: Negotiable
- Windows: Shades, Shutters, Window Treatments
- Parking: Driveway, Garage Door Opener, Ground Level, Other
- Garage Spaces: 3
- Flooring: Carpet, Ceramic Tile
- Roof: Shingle
- Heating: Central, Electric
- Cooling: Central Air
- Pets: Yes
- Sewer: Public Sewer
- Amenities: Basketball Court, Gated, Other, Park
Waterfront Description:
- Canal - Saltwater