5287 61St Avenue, St Petersburg, FL 33715
- 3,648 Sq Ft ($1,329 per sqft)
- 5
- 3
ID: TB8461656
For Sale
:
$4,850,000
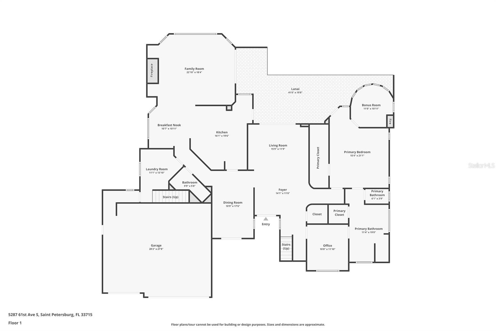
YOUR WATERFRONT DREAM residence awaits in the exclusive BAYWAY ISLES II community! This exceptional Mediterranean, Florida coastal-style waterfront estate is perfectly positioned on the tranquil waters of Boca Ciega Bay, offering just minutes of navigating to the Gulf of Mexico. The show-stopping 5-bedroom, 5-bathroom home provides expansive thoughtfully designed living spaces, seamlessly blending timeless elegance with modern comfort. Step inside and be greeted by soaring ceilings, grand arched windows, and sun-drenched open-concept floor plan, with each room thoughtfully designed to capture fabulous water views!!! The spacious family room overlooks the pool deck and the waterfront amenities, creating a true sense of serenity and seamless indoor-outdoor living! Located on the main level, the luxurious primary suite opens to a versatile flex room - perfect for unwinding while enjoying breathtaking sunset views. Outdoor living is elevated with a resort-style swimming pool and raised spa, a private dock featuring a 50-60 FT wet slip, and a 12,000-LB boat lift, making this home a boaters dream! Located within a guard-gated community, this exceptional residence is just minutes from Floridas world-famous beaches, premier golf courses, and the vibrant downtown St. Petersburg dining and arts scene, with Tampa International Airport only a 25-minute drive away. Whether hosting sunset soirées or enjoying peaceful morning coffee by the water, this is where unforgettable memories are made! Experience waterfront luxury at its finest - schedule your private tour today.
Equipment:
- Dishwasher
- Dryer
- Microwave
- Range
- Range Hood
- Refrigerator
- Washer
Interior Features:
- Cathedral Ceiling(s)
- Eat-in Kitchen
- Open Floorplan
- Primary Bedroom Main Floor
- Split Bedroom
Exterior Features:
- Sidewalk
- Sliding Doors
Financial Information:
- Taxes: $17.00
- Tax Year: 2024
- Association Fee: $115.00
- Association Fee Frequency: Monthly
- Condo Fee Frequency: Monthly
Room Dimensions:
- Laundry: Inside, Laundry Room
Additional Information:
- MLS Area: 33715 - St Pete/Tierra Verde
- Price per Square Feet: $1,329.50
- Total Floors: 2
- Water: Public
- Construction: Block
- Date Listed: 2026-01-07 04:24:51
- Pool: Yes
- Pool Type: Gunite, In Ground
- Private Spa: Yes
- Furnished: Unfurnished
- Garage Spaces: 3
- Flooring: Carpet, Ceramic Tile
- Roof: Tile
- Heating: Central
- Cooling: Central Air
- Pets: Yes
- Sewer: Public Sewer
Waterfront Description:
- Bay/Harbor
- Intracoastal Waterway