577 Davis Boulevard W, Tampa, FL 33606
- 6,537 Sq Ft ($910 per sqft)
- 5
- 5
ID: TB8461858
For Sale
:
$5,950,000
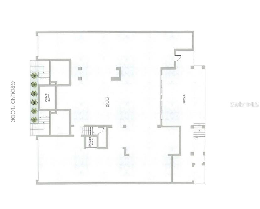
Under Construction. New construction by local Luxury home builder Brookshire Homes on a large lot on Davis Islands. A Coastal contemporary 3 level luxury home with 5 bedrooms, 5 full and 2 half baths, Den,
Bonus room, Pool & Spa, outdoor kitchen AND an 8 car garage! Exceptional craftsmanship and custom detail throughout. With block construction and impact windows & Gyp-Crete concrete
insulation on second floor, this elevated home offers strength, stability, and peace of mind. From the soaring 24-foot foyer to the 12 foot ceilings on first living level & 10 foot on the second,
discover wide-plank wood flooring, marble countertops, custom built-in cabinetry, and a generator, just to name a few features...
The open floor plan first level features a large great room with a gas fireplace, opening up to a large covered lanai with separate outdoor kitchen area, separate dining room with elaborate
wine display, large chef’s kitchen with top-of-the-line Thermador appliances, a plumbed coffee station, beverage refrigerator, and a walk-in pantry/scullery with a second dishwasher. On this
level you will also find a separate office, a bedroom suite + a large bonus/game room.
Upstairs, the primary large suite offers panoramic water views and a spa-inspired bathroom with a large shower as well as a freestanding tub. An elegant walk-in closet with built-in cabinetry &
island completes the suite. Three additional in suite bedrooms with walk-in closets, a loft with wet bar and purified water station, and a great laundry room with cabinetry for storage. Welcome
to Davis Islands vibrant village feel and easy move-around by golf cart, as well the immediate access to Downtown Tampa & Water Street, or enjoy dog park, dog beach, water access or
tennis courts and pickleball?
Equipment:
- Bar Fridge
- Dishwasher
- Disposal
- Exhaust Fan
- Gas Water Heater
- Microwave
- Range
- Range Hood
- Refrigerator
- Tankless Water Heater
- Wine Refrigerator
Interior Features:
- Crown Molding
- Eat-in Kitchen
- High Ceilings
- Kitchen/Family Room Combo
- Open Floorplan
- PrimaryBedroom Upstairs
- Smart Home
- Solid Surface Counters
- Solid Wood Cabinets
- Tray Ceiling(s)
- Walk-In Closet(s)
Exterior Features:
- Balcony
- French Doors
- Outdoor Kitchen
- Private Mailbox
- Rain Gutters
- Sliding Doors
View:
- Pool
- Water
Financial Information:
- Taxes: $4,666.00
- Tax Year: 2024
Room Dimensions:
- Laundry: Inside, Laundry Room, Upp
School Information:
- Elementary School: Gorrie-Hb
- Middle School: Wilson-Hb
- Junior High: Wilson-Hb
- High School: Plant-Hb
Additional Information:
- MLS Area: 33606 - Tampa / Davis Island/University Of Tampa
- Price per Square Feet: $910.20
- Water: Public
- Lot Desc.: Flood Insurance Required, Floodzone, City Limits, Landscaped, Level, Near Marina, Oversized Lot, Paved
- Construction: Block, Stucco, Frame, Wood Siding
- Date Listed: 2026-01-07 19:41:18
- Pool: Yes
- Pool Type: Gunite, Heated, In Ground, Lighting, Outside Bath Access, Salt Water, Tile
- Private Spa: Yes
- Furnished: Unfurnished
- Windows: Double Pane Windows, Insulated Windows, Low-Emissivity Windows
- Parking: Circular Driveway, Driveway, Electric Vehicle Charging Station(S), Garage Door Opener, Golf Cart Garage, Golf Cart Parking, Ground Level, Oversized, Garage, Tandem, Basement
- Garage Spaces: 8
- Flooring: Hardwood, Tile, Wood
- Roof: Metal
- Heating: Central, Zoned
- Cooling: Central Air, Zoned
- Pets: Yes
- Sewer: Public Sewer