59 King´s Court Street #1002, San Juan, PR 00911
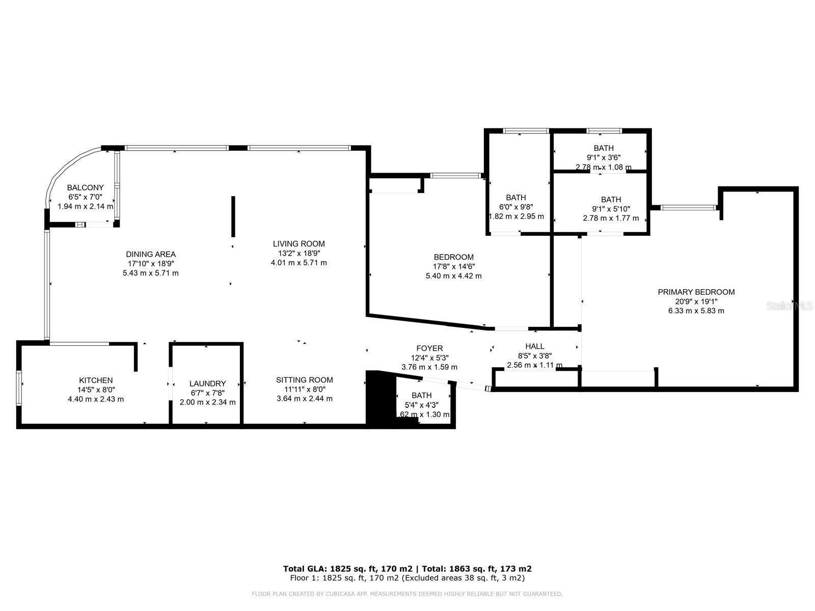
- 1,970 Sq Ft ($1,472 per sqft)
- 2
- 2
ID: PR9114119
For Sale
:
$2,900,000
Discover the epitome of coastal living in this sleek, modern two-bedroom apartment, nestled in one of the most sought-after and vibrant neighborhoods. Perfectly positioned oceanfront, this residence offers direct access to the preferred local beach—a pristine turtle nesting site and a hub of community activities, such as beach tennis, volleyball, and yoga, among others.
The apartment boasts a prime location in a secure, family-friendly area known for its welcoming community and lively atmosphere. Just steps from the sand, you can wake up to breathtaking ocean views and enjoy the serenity of beachfront living. Families will appreciate the proximity to top-rated schools, located just two blocks away, making it ideal for those prioritizing education.
Convenience is at your doorstep, with walkable access to pharmacies, banks, casual eateries, fine dining, and a 24/7 supermarket. The building also features its own gym for added convenience.
Inside, the apartment offers a modern and flexible design, with a bright, open-concept layout that includes two ensuite bedrooms and the potential to add a third bedroom. A private balcony provides the perfect spot to unwind while taking in stunning views of the ocean and surrounding neighborhood. Additionally, the unit comes with two dedicated parking spaces, one of which is covered and equipped with an EV charger.
Whether you
e a single professional, a couple, or a small family looking to elevate your lifestyle, this apartment blends contemporary elegance with unbeatable location perks.
HOA $769.19/mo. ; Property tax $1,875.00/yr.; Hazard insurance premium $6,613.00/yr.
Equipment:
- Dishwasher
- Dryer
- Electric Water Heater
- Microwave
- Range
- Range Hood
- Refrigerator
- Washer
Interior Features:
- Accessibility Features
- Solid Surface Counters
- Stone Counters
- Window Treatments
Exterior Features:
- Balcony
- Hurricane Shutters
Financial Information:
- Taxes: $2.00
- Tax Year: 2024
- Association Fee: $769.00
- Association Fee Frequency: Monthly
- Condo Fee Frequency: Monthly
Room Dimensions:
- Laundry: Laundry Room
Additional Information:
- MLS Area: 00911 - San Juan
- Price per Square Feet: $1,472.08
- Total Floors: 14
- Water: Public
- Construction: Block, Concrete
- Date Listed: 2025-06-08 19:56:53
- Pool: No
- Furnished: Unfurnished
- Windows: Double Pane Windows, Insulated Windows, Shades, Window Treatments
- Garage Spaces: 2
- Flooring: Marble
- Roof: Concrete
- Heating: None
- Cooling: Mini-Split Unit(S)
- Pets: Dogs Ok
- Sewer: Public Sewer
Waterfront Description:
- Beach Front