604 Minnehaha Lane, Maitland, FL 32751
- 6,163 Sq Ft ($446 per sqft)
- 6
- 5
ID: O6335825
Pending
:
$2,750,000
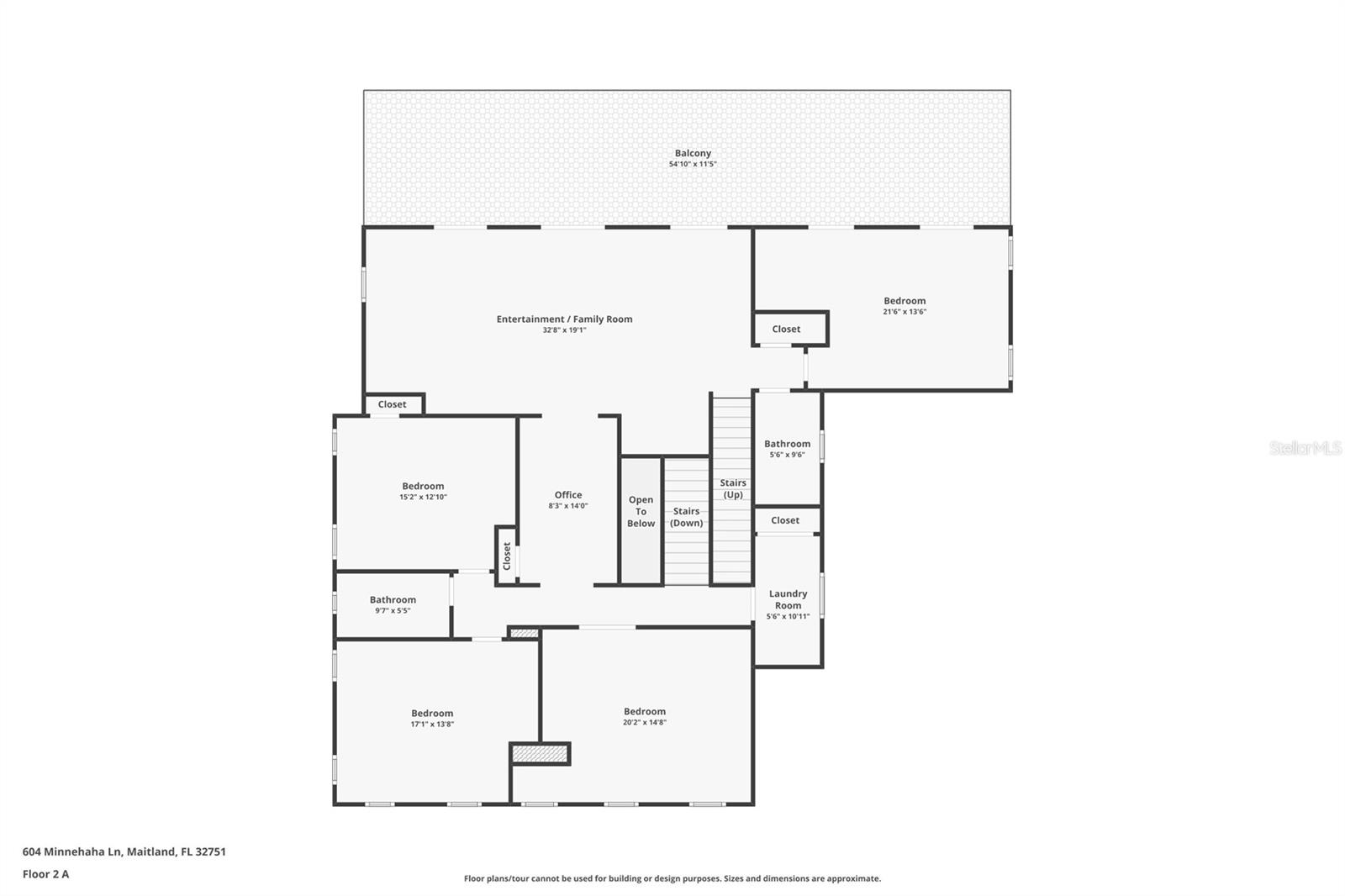
Under contract-accepting backup offers. The Winter Park Chain is the context; the shoreline of Lake Minnehaha is the setting. A three-story, columned home opens with an honest, crafted tone: new low-profile concrete tile roof, operable cypress shutters with hand-forged hardware, Chippendale balustrades, and a beveled front door offering almost 6,200 sq. ft. curated for light, views, and everyday lake living. Inside, the home is bright and airy—sunlight does the work here. A direct foyer sightline leads you to a rear wall of French doors that draw in a calm, even glow of natural light across heart-of-pine floors and disciplined millwork: raised-panel wainscot, multi-step crown molding, and architectural beams. Those doors open to a full-length covered lanai; beyond, a heated saltwater pool and spa step down to a deep backyard and a private dock with a covered boat slip and adjoining lounge deck. The kitchen is built to perform so life feels easy. Morning coffee, weeknight pasta, Saturday crowds, it handles all of it. Sub-Zero refrigeration with additional refrigerator drawers, a Thermador six-burner gas range, two dishwashers, and a warming drawer. Granite counters surround a prep island with rinse sink; the peninsula takes the laptops and late plates. A dry bar with wine cooler ties to the dining room for effortless pours and keeps glassware close at hand. Just off the family room, the primary suite claims a quiet corner and opens to the lanai; coffee at sunrise, warm light at day’s end. A large custom walk-in closet answers storage; the bath finishes the suite with tumbled marble, Kohler fixtures, and a cast-iron vintage tub. At the center of the first floor, a deliberate service run keeps daily life organized: powder bath, temperature-controlled wine cellar, a straight sightline to the first of two laundry rooms and the garage entry ending at a private interior stair to a secluded in-law/guest suite with its own full bath. It’s independent, quiet, and ideal for long stays or live-in support. The main stair brings you to a second level arranged with intent. One wing holds three bedrooms around a shared bath. An office corridor carries you to the lake-view great room under a coffered ceiling; triple French doors open to the full-length upper veranda. Another bedroom on this wing enjoys its own veranda access with a full bath close by. Above it all, the third floor is a generous, flexible loft fit for a screening room, billiards or game lounge, studio, gym, or a collector’s library with practical storage tucked to the edges. Quiet systems match the craft: Cat-5 wiring, surround sound, central vacuum, and two laundry rooms. Recent updates keep the essentials current: new HVACs (2020, 2021) and a new dock (2024). Zoned for Maitland Middle and Winter Park High, this home is tuned to everyday rhythm: water out back, light throughout, spaces that work the way you live. From lanai shade to the last light on the lake, it delivers on its promise—an honest, crafted place where the architecture serves the life it keeps.
Equipment:
- Bar Fridge
- Built-In Oven
- Dishwasher
- Disposal
- Dryer
- Electric Water Heater
- Exhaust Fan
- Microwave
- Range
- Range Hood
- Refrigerator
- Wine Refrigerator
Interior Features:
- Built-in Features
- Ceiling Fans(s)
- Chair Rail
- Coffered Ceiling(s)
- Crown Molding
- Eat-in Kitchen
- High Ceilings
- Kitchen/Family Room Combo
- Open Floorplan
- Primary Bedroom Main Floor
- Solid Wood Cabinets
- Split Bedroom
- Stone Counters
- Thermostat
- Walk-In Closet(s)
- Wet Bar
- Window Treatments
Exterior Features:
- Balcony
- French Doors
- Lighting
- Private Mailbox
- Rain Gutters
- Shade Shutter(s)
View:
- Pool
- Water
Financial Information:
- Taxes: $24,864.00
- Tax Year: 2024
Room Dimensions:
- Laundry: Electric Dryer Hookup, In
School Information:
- Elementary School: Lake Sybelia Elem
- Middle School: Maitland Middle
- Junior High: Maitland Middle
- High School: Winter Park High
Additional Information:
- MLS Area: 32751 - Maitland / Eatonville
- Price per Square Feet: $446.21
- Total Floors: 3
- Water: Canal/Lake For Irrigation, Public
- Lot Desc.: City Limits, Irregular Lot, Landscaped, Oversized Lot, Private, Street Dead-End, Paved
- Construction: Block, Concrete, Stucco
- Date Listed: 2025-08-15 21:40:52
- Pool: Yes
- Pool Type: Deck, Gunite, Heated, In Ground, Lighting, Salt Water
- Private Spa: Yes
- Furnished: Unfurnished
- Windows: Drapes, Shutters, Window Treatments, Wood Frames
- Parking: Driveway, Garage Door Opener, Ground Level, Guest, Oversized
- Garage Spaces: 2
- Flooring: Marble, Tile, Wood
- Roof: Concrete, Tile
- Heating: Central, Electric
- Cooling: Central Air, Zoned
- Sewer: Public Sewer
Waterfront Description:
- Lake Front
- Lake Privileges