640 Lyons Lane, Longboat Key, FL 34228
- 2,130 Sq Ft ($1,336 per sqft)
- 3
- 3
ID: A4674925
For Sale
:
$2,845,000
One or more photo(s) has been virtually staged. Under Construction. Welcome to 640 Lyons Lane — a rare opportunity to purchase a brand-new, fully constructed home on one of North Longboat Key’s most distinctive streets. With homes on only one side and protected wetlands on the other, this location offers unmatched privacy, tranquil views, and a true coastal retreat.
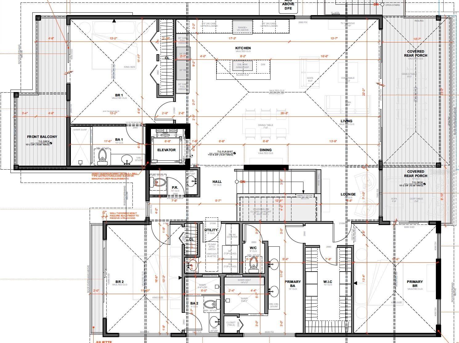
This listing includes a complete new-build home with construction, based on the current plans for a beautifully designed three-bedroom, three-and-a-half-bath residence. The floor plan features an open-concept layout, a spacious primary suite with peaceful canal views, seamless indoor–outdoor living, and an elevator for convenient access between levels.
Buyers still have the freedom to customize the home during construction — from interior finishes to structural changes. You may enhance the design by adding a second living level, expanding the footprint, or even starting fresh with an entirely new custom home design. The flexibility is yours.
A newly installed pool and private boat dock with a 10,000 lb lift are already in place and fully incorporated into the final build. With direct access to Millar and Sarasota Bays and no fixed bridges to the Gulf, this home is ideal for anyone who loves life on the water.
Enjoy breathtaking water views from both the front and rear of the property, creating a serene backdrop throughout your living spaces.
Whether you envision a modern coastal escape, a refined full-time residence, or a bespoke luxury vacation rental retreat, 640 Lyons Lane offers the perfect canvas to bring your vision to life in one of Longboat Key’s most desirable neighborhoods — just moments from pristine beaches, golf, fine dining, and everything that defines elevated island living.
Equipment:
- Built-In Oven
- Cooktop
- Dishwasher
- Disposal
- Microwave
- Range Hood
- Refrigerator
Interior Features:
- Ceiling Fans(s)
Exterior Features:
- Balcony
- Outdoor Kitchen
- Rain Gutters
- Sliding Doors
View:
- Water
Financial Information:
- Taxes: $14.00
- Tax Year: 2024
Room Dimensions:
- Laundry: Electric Dryer Hookup, Ga
Additional Information:
- MLS Area: 34228 - Longboat Key
- Price per Square Feet: $1,335.68
- Total Floors: 2
- Water: Public
- Lot Desc.: Street Dead-End
- Construction: Block, Hardiplank Type, Stucco
- Date Listed: 2025-12-21 19:23:19
- Pool: Yes
- Pool Type: Gunite, Heated, In Ground, Salt Water, Screen Enclosure
- Private Spa: No
- Furnished: Unfurnished
- Garage Spaces: 5
- Flooring: Ceramic Tile, Luxury Vinyl
- Roof: Metal
- Heating: Electric, Natural Gas
- Cooling: Central Air
- Sewer: Public Sewer
Waterfront Description:
- Canal - Saltwater