6604 Atlantic Avenue S, New Smyrna Beach, FL 32169
- 4,000 Sq Ft ($1,238 per sqft)
- 6
- 7
ID: NS1086797
For Sale
:
$4,950,000
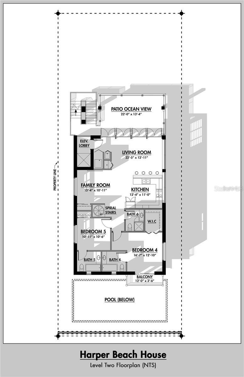
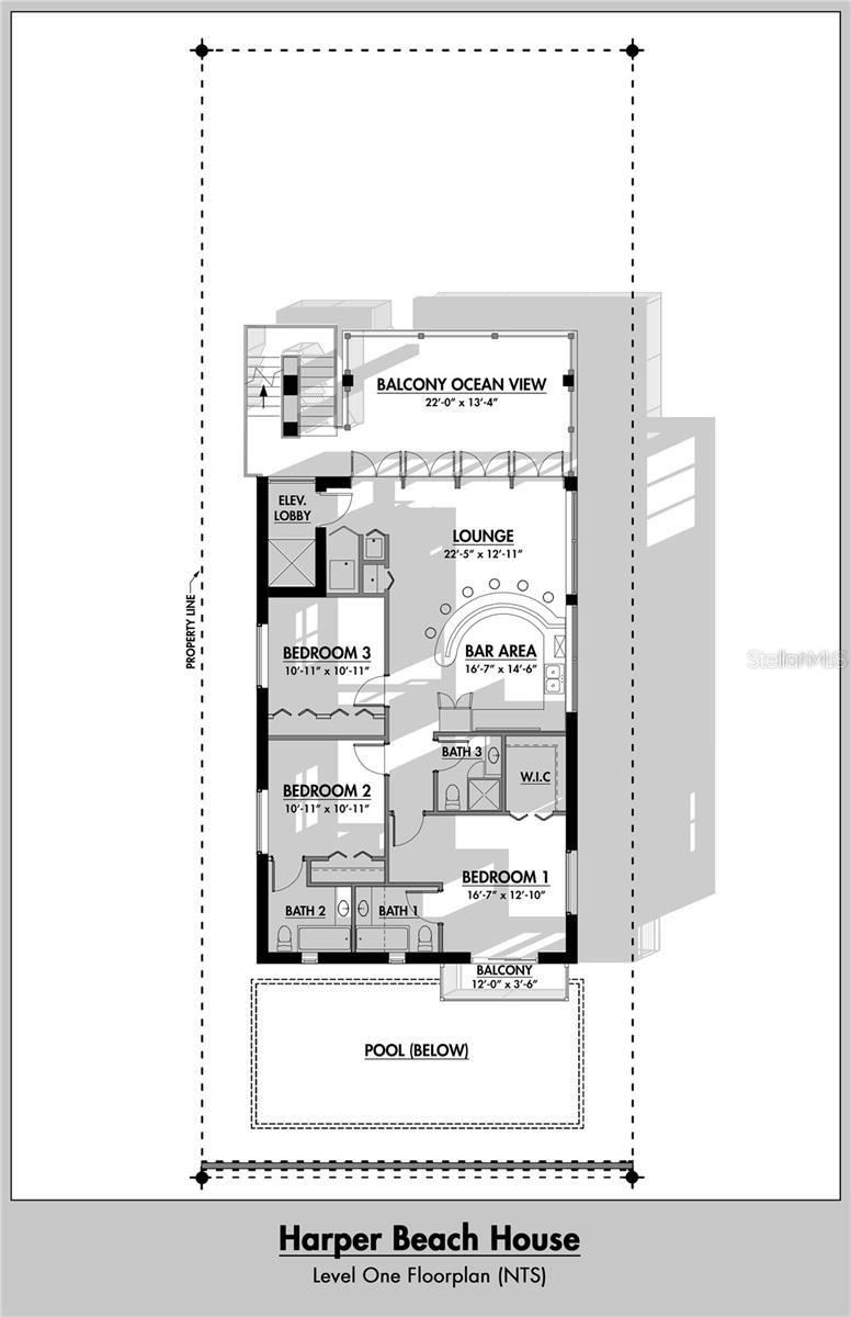
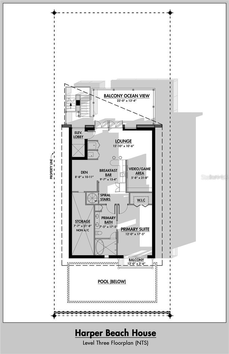
Under Construction. Experience the pinnacle of luxury living with this pre-completion pricing opportunity to own a stunning beachfront residence on the Bethune Beach Promenade in New Smyrna Beach with the opportunity to choose your custom finishes. This is the largest of the seaside homes and is designed for sustainability, beauty, and flexible living options—ideal as a full-time residence, vacation home, or luxury income property. Located just one block from Bethune Beach Park and a short drive to dining and boutique shops on Flagler Ave, while offering convenient access to picnic areas, boat and kayak launches, manatee lagoon and Canaveral National Seashore. Enjoy panoramic ocean views from three levels of expansive balconies. Watch weekly rocket launches from Cape Canaveral, and experience nightly coastal breezes and sunrise views. A fourth-level hot tub overlooks the shoreline for the ultimate relaxation experience. This 6-bedroom, 7-bath heated pool home features three separate living levels, each independently accessible via elevator and individually climate-controlled—ideal for multigenerational living or guest rental flexibility. Each level includes kitchen and bar spaces, plus ample on-site parking and a 3-car garage. The home can comfortably sleep 10+ guests. Built with concrete construction, block walls, and a steel truss roof system for superior durability. Additional features include washer and dryer on every level, a full fire-suppression sprinkler system, PGT impact windows, and an on-demand recirculating hot water system. Situated in a no-flood-zone oceanfront location with a county-maintained protective seawall. Bethune Beach also offers an attended lifeguard tower and is known for some of the best surfing and fishing on Florida’s east coast. Designed by award-winning architect David Harper and constructed by Walters Construction—NSB’s seasoned residential beachfront builder; this home offers the perfect balance of exclusivity and accessibility. Take advantage of pre-completion pricing and New Builder 1-2-10 year Warranty and own a piece of oceanfront paradise!
Equipment:
- Bar Fridge
- Dishwasher
- Disposal
- Dryer
- Electric Water Heater
- Microwave
- Other
- Range
- Refrigerator
- Washer
Interior Features:
- Ceiling Fans(s)
- Dry Bar
- Elevator
- High Ceilings
- Kitchen/Family Room Combo
- Living Room/Dining Room Combo
- Open Floorplan
- Other
- PrimaryBedroom Upstairs
- Smart Home
- Stone Counters
- Thermostat
- Walk-In Closet(s)
- Wet Bar
Exterior Features:
- Balcony
- French Doors
- Lighting
- Outdoor Shower
- Private Mailbox
View:
- Water
Financial Information:
- Taxes: $11,469.00
- Tax Year: 2026
Room Dimensions:
- Laundry: Electric Dryer Hookup, In
School Information:
- Elementary School: Coronado Beach Elem
- Middle School: New Smyrna Beach Middl
- Junior High: New Smyrna Beach Middl
- High School: New Smyrna Beach High
Additional Information:
- MLS Area: 32169 - New Smyrna Beach
- Price per Square Feet: $1,237.50
- Total Floors: 3
- Water: Public
- Lot Desc.: Cleared, In County, Level, Street Dead-End, Paved
- Construction: Block, Stucco
- Date Listed: 2025-12-16 18:28:17
- Pool: Yes
- Pool Type: Heated, In Ground, Other
- Private Spa: Yes
- Furnished: Unfurnished
- Windows: Energy Star Qualified Windows, Storm Window(S)
- Parking: Deeded, Garage Door Opener, Ground Level, Guest, Basement
- Garage Spaces: 3
- Flooring: Other
- Roof: Other
- Heating: Central, Electric
- Cooling: Central Air
- Pets: Cats Ok, Dogs Ok
- Sewer: Public Sewer
Waterfront Description:
- Beach Front
- Gulf/Ocean