8640 Gulf Boulevard W, Treasure Island, FL 33706
- 1,316 Sq Ft ($2,196 per sqft)
- 2
- 2
ID: TB8469911
For Sale
:
$2,890,000
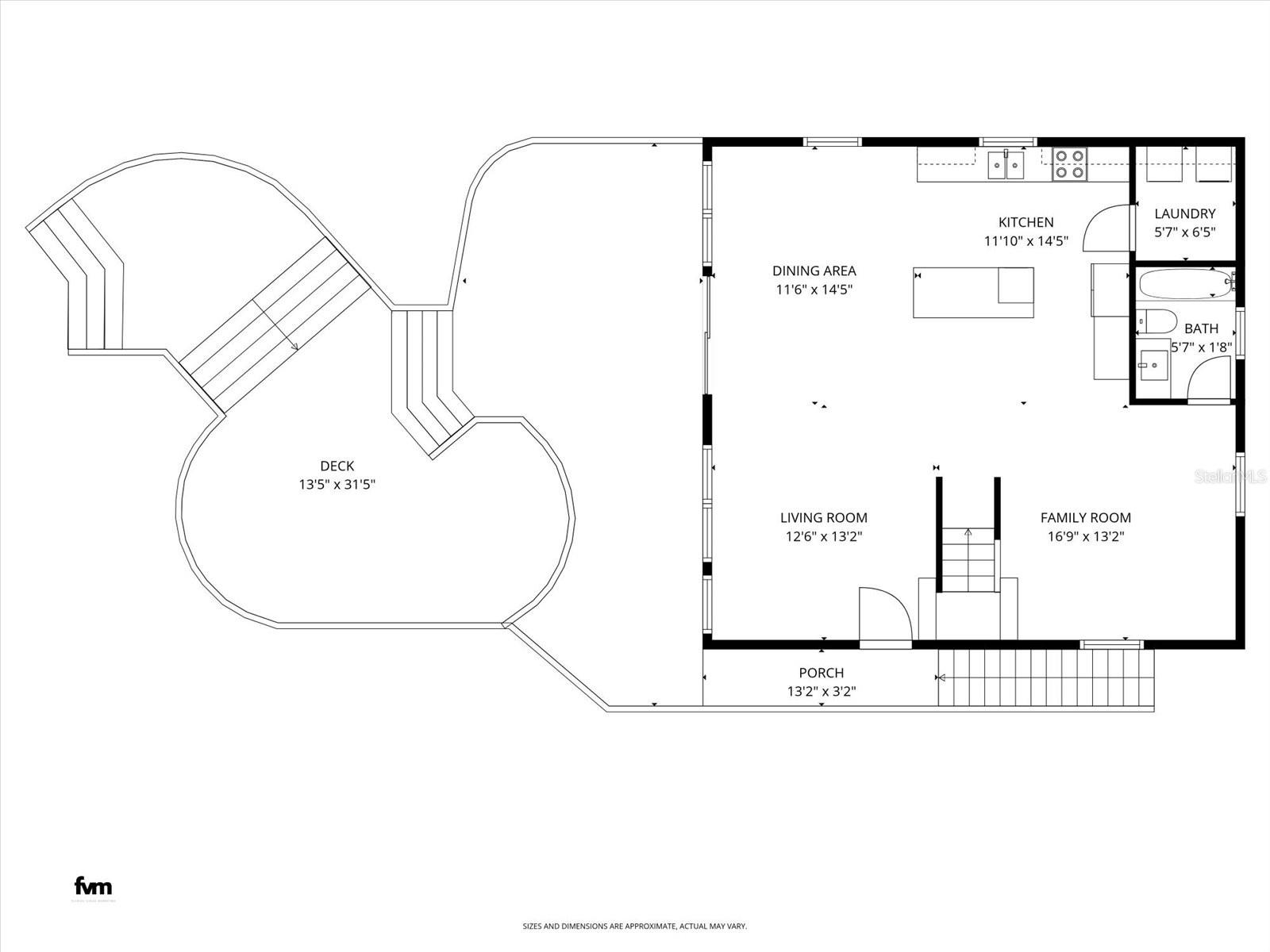
Ready to exchange snowdrifts for sand dunes & coconut palms? This Elevated Beach House has amazing Beach views & an incredible location, directly on the sand on the Gulf of Mexico. Located in the eclectic neighborhood of Sunset Beach. Feel the Boho Vibes with artistic accents, white washed walls & bamboo floors. This well-maintained beach house has an open floor plan throughout to invite the water views inside. A gleaming kitchen with solid wood cabinets, cooking island, breakfast bar & pantry. The main level bathroom adorned with a mesmerizing floor to ceiling mural entitled Mermaid Dreams. Each bedroom has vaulted ceilings & an ensuite bathroom. A private balcony completes the owner’s suite. The second living room could easily be converted into an additional bedroom if needed. If you were made for outdoor beach living, this house was made for you. Love was poured into the multi-level circular decks & grand staircase which pull you towards the white sands and turquoise waters of the Gulf. Come to Sunset Beach where the Sunset is celebrated daily, your sunglasses are your most important accessory & your neighbors become your friends. A freshly Re-nourished beach awaits your arrival. Feature sheet, operating expenses, Suvey, elevation certificate & aerial video available on the virtual tour.
Equipment:
- Dishwasher
- Dryer
- Electric Water Heater
- Microwave
- Range
- Refrigerator
Interior Features:
- Built-in Features
- Ceiling Fans(s)
- Eat-in Kitchen
- Open Floorplan
- PrimaryBedroom Upstairs
- Solid Wood Cabinets
- Stone Counters
- Thermostat
- Vaulted Ceiling(s)
Exterior Features:
- Balcony
View:
- Water
Financial Information:
- Taxes: $16.00
- Tax Year: 2024
Room Dimensions:
- Laundry: In Kitchen, Inside, Laund
Additional Information:
- MLS Area: 33706 - Pass A Grille Bch/St Pete Bch/Treasure Isl
- Price per Square Feet: $2,196.05
- Total Floors: 3
- Water: Public
- Lot Desc.: City Limits
- Construction: Frame
- Date Listed: 2026-01-30 14:49:38
- Pool: No
- Furnished: Unfurnished
- Windows: Double Pane Windows
- Parking: Covered, Driveway, Golf Cart Parking, Oversized, Basement
- Flooring: Bamboo, Ceramic Tile, Other
- Roof: Shingle
- Heating: Central
- Cooling: Central Air
- Pets: Yes
- Sewer: Public Sewer
Waterfront Description:
- Beach Front